Elected Officials
Courts
Departments
Initiatives
Open Government
About
Login / Register
Home
/
Property & Tax Records
/
Property Records
/
Property & Tax Search
/
Parcel Profile
/
Print View
Search for Another Parcel
Parcel Profile
Historical Card
Sketches
Photos
Tax Map
Taxes
Print View
Print This Page
Address: 630 E 7 ST
Parcel: 14010019022700
Parcel Profile
Address
630 | E | 7 | ST
Street Status
PAVED | SIDEWALK
School District
CITY OF ERIE SCHOOL
Acreage
0.2083
Classification
R
Land Use Code
SINGLE FAMILY
Legal Description
630 E 7 ST 55 X 165
Square Feet
1912
Topo
LEVEL
Utility
ALL PUBLIC
Zoning
Please contact your municipal zoning officer
Deed Book
2023
Deed Page
003227
2026 Tax Values
Land Value / Taxable
8,100 / 8,100.00
Building Value / Taxable
30,500 / 30,500.00
Total Value / Taxable
38,600 / 38,600.00
Clean & Green
Inactive
Homestead Status
Inactive
Farmstead Status
Inactive
Lerta Amount
0
Lerta Expiration Year
0
Residential Data
Card 1
Style
OLD STYLE
Basement
PART
Year Built
1850
Exterior Wall
ALUMINUM/VINYL
Total Living Area
1912
Full Baths
1
Half Baths
1
Fuel Type
GAS
Heating
CENTRAL
Heating System
FORCED AIR
Stories
2.0
Total Bedrooms
3
Total Family Rooms
1
Total Rooms
7
Fireplaces
1
Other Buildings & Yards
Description
Built
Width
Length
Area
FRAME OR CB DETACHED GARAGE
1910
20
20
400
Sales History
Sale Date
Type
Price
Book / Page
Other Info
3/2/2023
LAND & BUILDING
0
2023 / 003227
SPECIAL WARRANTY DEED
7/11/2017
LAND & BUILDING
0
2017 / 014470
QUIT CLAIM DEED
8/8/2008
LAND & BUILDING
68000
1514 / 0175
DEED
6/20/1968
0
0983 / 0534
6/20/1968
LAND & BUILDING
11700
983 / 534
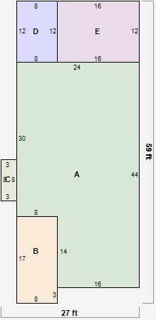
Parcel Sketches
Residential Card 1
A
MAIN
944 square feet
B
EFP ENCL FRAME PORCH
136 square feet
C
UNFIN BSMT BASEMENT UNFINISHED FRBAY FRAME BAY
24 square feet
D
WDDCK WOOD DECKS
96 square feet
E
OFP OPEN FRAME PORCH
192 square feet
Parcel Images
Please note:
this tab is for informational purposes only and may not show all delinquencies, see the Taxes tab for more accurate delinquent taxes due.