Elected Officials
Courts
Departments
Initiatives
Open Government
About
Login / Register
Home
/
Property & Tax Records
/
Property Records
/
Property & Tax Search
/
Parcel Profile
/
Print View
Search for Another Parcel
Parcel Profile
Historical Card
Sketches
Photos
Tax Map
Taxes
Print View
Print This Page
Address: 644 E 7 ST
Parcel: 14010019023100
Parcel Profile
Address
644 | E | 7 | ST
Street Status
PAVED | SIDEWALK
School District
CITY OF ERIE SCHOOL
Acreage
0.1250
Classification
R
Land Use Code
SINGLE FAMILY
Legal Description
644 E 7 ST 33 X 165
Square Feet
1496
Topo
LEVEL
Utility
ALL PUBLIC
Zoning
Please contact your municipal zoning officer
Deed Book
1060
Deed Page
2036
2026 Tax Values
Land Value / Taxable
7,600 / 7,600.00
Building Value / Taxable
19,600 / 19,600.00
Total Value / Taxable
27,200 / 27,200.00
Clean & Green
Inactive
Homestead Status
Inactive
Farmstead Status
Inactive
Lerta Amount
0
Lerta Expiration Year
0
Residential Data
Card 1
Style
OLD STYLE
Basement
FULL
Year Built
1903
Exterior Wall
ALUMINUM/VINYL
Total Living Area
1496
Full Baths
1
Half Baths
0
Fuel Type
GAS
Heating
CENTRAL
Heating System
FORCED AIR
Stories
2.0
Total Bedrooms
3
Total Family Rooms
0
Total Rooms
8
Fireplaces
0
Other Buildings & Yards
No OBY Data Found
Sales History
Sale Date
Type
Price
Book / Page
Other Info
9/5/2003
LAND & BUILDING
22000
1060 / 2036
FIDUCIARY DEED
3/23/1943
0
430 / 347
3/23/1943
0
0430 / 0347
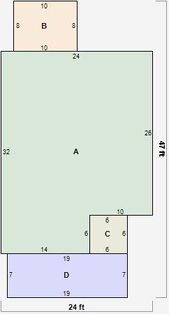
Parcel Sketches
Residential Card 1
A
MAIN
708 square feet
B
1S FR ONE STORY FRAME
80 square feet
C
EFP ENCL FRAME PORCH
36 square feet
D
OFP OPEN FRAME PORCH
133 square feet
Parcel Images
Please note:
this tab is for informational purposes only and may not show all delinquencies, see the Taxes tab for more accurate delinquent taxes due.