Elected Officials
Courts
Departments
Initiatives
Open Government
About
Login / Register
Home
/
Property & Tax Records
/
Property Records
/
Property & Tax Search
/
Parcel Profile
/
Print View
Search for Another Parcel
Parcel Profile
Historical Card
Sketches
Photos
Tax Map
Taxes
Print View
Print This Page
Address: 654 E 7 ST
Parcel: 14010019023400
Parcel Profile
Address
654 | E | 7 | ST
Street Status
PAVED | SIDEWALK
School District
CITY OF ERIE SCHOOL
Acreage
0.0781
Classification
R
Land Use Code
SINGLE FAMILY
Legal Description
654 E 7 ST 40 X 85
Square Feet
1368
Topo
LEVEL
Utility
ALL PUBLIC
Zoning
Please contact your municipal zoning officer
Deed Book
2014
Deed Page
003399
2026 Tax Values
Land Value / Taxable
6,700 / 6,700.00
Building Value / Taxable
16,950 / 16,950.00
Total Value / Taxable
23,650 / 23,650.00
Clean & Green
Inactive
Homestead Status
Active
Farmstead Status
Inactive
Lerta Amount
0
Lerta Expiration Year
0
Residential Data
Card 1
Style
BUNGALOW
Basement
PART
Year Built
1890
Exterior Wall
COMPOSITION
Total Living Area
1368
Full Baths
1
Half Baths
0
Fuel Type
GAS
Heating
CENTRAL
Heating System
FORCED AIR
Stories
1.0
Total Bedrooms
3
Total Family Rooms
0
Total Rooms
6
Fireplaces
0
Other Buildings & Yards
No OBY Data Found
Sales History
Sale Date
Type
Price
Book / Page
Other Info
2/24/2014
LAND & BUILDING
10000
2014 / 003399
SPECIAL WARRANTY DEED
11/15/1993
LAND & BUILDING
0
303 / 458
AFFIDAVIT
11/15/1993
0
0303 / 0458
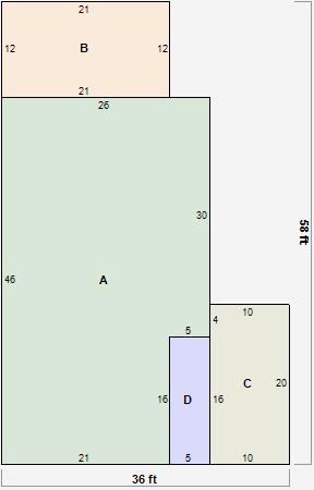
Parcel Sketches
Residential Card 1
A
MAIN
1116 square feet
B
1S FR ONE STORY FRAME
252 square feet
C
CARPT CARPORT
200 square feet
D
OFP OPEN FRAME PORCH
80 square feet
Parcel Images
Please note:
this tab is for informational purposes only and may not show all delinquencies, see the Taxes tab for more accurate delinquent taxes due.