Elected Officials
Courts
Departments
Initiatives
Open Government
About
Login / Register
Home
/
Property & Tax Records
/
Property Records
/
Property & Tax Search
/
Parcel Profile
/
Print View
Search for Another Parcel
Parcel Profile
Historical Card
Sketches
Photos
Tax Map
Taxes
Print View
Print This Page
Address: 423 ASH ST
Parcel: 14010020022700
Parcel Profile
Address
423 | ASH | ST
Street Status
PAVED | SIDEWALK
School District
CITY OF ERIE SCHOOL
Acreage
0.0871
Classification
R
Land Use Code
SINGLE FAMILY
Legal Description
423 ASH ST 33 X 115
Square Feet
2096
Topo
LEVEL
Utility
ALL PUBLIC
Zoning
Please contact your municipal zoning officer
Deed Book
1446
Deed Page
2099
2026 Tax Values
Land Value / Taxable
6,900 / 6,900.00
Building Value / Taxable
32,530 / 32,530.00
Total Value / Taxable
39,430 / 39,430.00
Clean & Green
Inactive
Homestead Status
Inactive
Farmstead Status
Inactive
Lerta Amount
0
Lerta Expiration Year
0
Residential Data
Card 1
Style
OLD STYLE
Basement
FULL
Year Built
1882
Exterior Wall
ALUMINUM/VINYL
Total Living Area
2096
Full Baths
1
Half Baths
0
Fuel Type
GAS
Heating
CENTRAL
Heating System
FORCED AIR
Stories
2.0
Total Bedrooms
3
Total Family Rooms
0
Total Rooms
7
Fireplaces
0
Other Buildings & Yards
No OBY Data Found
Sales History
Sale Date
Type
Price
Book / Page
Other Info
9/13/2007
LAND & BUILDING
27500
1446 / 2099
DEED
6/8/2007
LAND & BUILDING
0
1421 / 2356
SHERIFF'S DED
9/21/1994
0
0354 / 2210
9/21/1994
LAND & BUILDING
0
354 / 2210
AFFIDAVIT
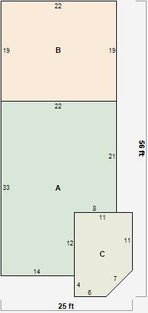
Parcel Sketches
Residential Card 1
A
MAIN
630 square feet
B
1S FR ONE STORY FRAME 1S FR ONE STORY FRAME
418 square feet
C
EFP ENCL FRAME PORCH
164 square feet
Parcel Images
Please note:
this tab is for informational purposes only and may not show all delinquencies, see the Taxes tab for more accurate delinquent taxes due.