Elected Officials
Courts
Departments
Initiatives
Open Government
About
Login / Register
Home
/
Property & Tax Records
/
Property Records
/
Property & Tax Search
/
Parcel Profile
/
Print View
Search for Another Parcel
Parcel Profile
Historical Card
Sketches
Photos
Tax Map
Taxes
Print View
Print This Page
Address: 634 E 5 ST
Parcel: 14010020023700
Parcel Profile
Address
634 | E | 5 | ST
Street Status
PAVED | SIDEWALK
School District
CITY OF ERIE SCHOOL
Acreage
0.1446
Classification
R
Land Use Code
SINGLE FAMILY
Legal Description
634 E 5 ST 40 X 157.5
Square Feet
1035
Topo
LEVEL
Utility
ALL PUBLIC
Zoning
Please contact your municipal zoning officer
Deed Book
0813
Deed Page
0096
2026 Tax Values
Land Value / Taxable
7,700 / 7,700.00
Building Value / Taxable
15,900 / 15,900.00
Total Value / Taxable
23,600 / 23,600.00
Clean & Green
Inactive
Homestead Status
Inactive
Farmstead Status
Inactive
Lerta Amount
0
Lerta Expiration Year
0
Residential Data
Card 1
Style
BUNGALOW
Basement
FULL
Year Built
1916
Exterior Wall
ALUMINUM/VINYL
Total Living Area
1035
Full Baths
1
Half Baths
0
Fuel Type
GAS
Heating
CENTRAL A/C
Heating System
FORCED AIR
Stories
1.0
Total Bedrooms
3
Total Family Rooms
0
Total Rooms
7
Fireplaces
0
Other Buildings & Yards
Description
Built
Width
Length
Area
FRAME UTILITY SHED
1970
12
18
216
Sales History
Sale Date
Type
Price
Book / Page
Other Info
9/28/2001
LAND & BUILDING
32000
0813 / 0096
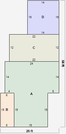
Parcel Sketches
Residential Card 1
A
MAIN
561 square feet
B
OFP OPEN FRAME PORCH
90 square feet
C
1S FR ONE STORY FRAME
264 square feet
D
1S FR ONE STORY FRAME
210 square feet
Parcel Images
Please note:
this tab is for informational purposes only and may not show all delinquencies, see the Taxes tab for more accurate delinquent taxes due.