Elected Officials
Courts
Departments
Initiatives
Open Government
About
Login / Register
Home
/
Property & Tax Records
/
Property Records
/
Property & Tax Search
/
Parcel Profile
/
Print View
Search for Another Parcel
Parcel Profile
Historical Card
Sketches
Photos
Tax Map
Taxes
Print View
Print This Page
Address: 723 REED ST
Parcel: 14010022011800
Parcel Profile
Address
723 | REED | ST
Street Status
PAVED | SIDEWALK
School District
CITY OF ERIE SCHOOL
Acreage
0.1054
Classification
R
Land Use Code
SINGLE FAMILY
Legal Description
723 REED ST 34 X 135
Square Feet
1900
Topo
LEVEL
Utility
ALL PUBLIC
Zoning
Please contact your municipal zoning officer
Deed Book
0431
Deed Page
0099
2025 Tax Values
Land Value / Taxable
7,300 / 7,300.00
Building Value / Taxable
31,600 / 31,600.00
Total Value / Taxable
38,900 / 38,900.00
Clean & Green
Inactive
Homestead Status
Inactive
Farmstead Status
Inactive
Lerta Amount
0
Lerta Expiration Year
0
Residential Data
Card 1
Style
OLD STYLE
Basement
FULL
Year Built
1872
Exterior Wall
STONE
Total Living Area
1900
Full Baths
1
Half Baths
0
Fuel Type
GAS
Heating
CENTRAL
Heating System
FORCED AIR
Stories
2.0
Total Bedrooms
3
Total Family Rooms
0
Total Rooms
8
Fireplaces
0
Other Buildings & Yards
Description
Built
Width
Length
Area
FRAME OR CB DETACHED GARAGE
1930
18
33
594
Sales History
Sale Date
Type
Price
Book / Page
Other Info
3/29/1996
LAND & BUILDING
38250
0431 / 0099
3/29/1996
0
0431 / 0099
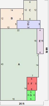
Parcel Sketches
Residential Card 1
A
MAIN
876 square feet
B
UNFIN BSMT BASEMENT UNFINISHED 1S FR ONE STORY FRAME
148 square feet
C
MA_PT CONC/MAS PATIO
96 square feet
D
EFP ENCL FRAME PORCH
70 square feet
E
EFP ENCL FRAME PORCH
60 square feet
F
EFP ENCL FRAME PORCH
48 square feet
G
OFP OPEN FRAME PORCH
30 square feet
Parcel Images