Elected Officials
Courts
Departments
Initiatives
Open Government
About
Login / Register
Home
/
Property & Tax Records
/
Property Records
/
Property & Tax Search
/
Parcel Profile
/
Print View
Search for Another Parcel
Parcel Profile
Historical Card
Sketches
Photos
Tax Map
Taxes
Print View
Print This Page
Address: 708 ROSEDALE AVE
Parcel: 14010022022400
Parcel Profile
Address
708 | ROSEDALE | AVE
Street Status
PAVED | SIDEWALK
School District
CITY OF ERIE SCHOOL
Acreage
0.0413
Classification
R
Land Use Code
SINGLE FAMILY
Legal Description
708 ROSEDALE AVE 30 X 60
Square Feet
1200
Topo
LEVEL
Utility
ALL PUBLIC
Zoning
Please contact your municipal zoning officer
Deed Book
2017
Deed Page
006068
2025 Tax Values
Land Value / Taxable
5,900 / 5,900.00
Building Value / Taxable
27,080 / 27,080.00
Total Value / Taxable
32,980 / 32,980.00
Clean & Green
Inactive
Homestead Status
Inactive
Farmstead Status
Inactive
Lerta Amount
0
Lerta Expiration Year
0
Residential Data
Card 1
Style
OLD STYLE
Basement
FULL
Year Built
1915
Exterior Wall
ALUMINUM/VINYL
Total Living Area
1200
Full Baths
1
Half Baths
0
Fuel Type
GAS
Heating
CENTRAL
Heating System
FORCED AIR
Stories
2.0
Total Bedrooms
3
Total Family Rooms
0
Total Rooms
6
Fireplaces
0
Other Buildings & Yards
No OBY Data Found
Sales History
Sale Date
Type
Price
Book / Page
Other Info
3/24/2017
LAND & BUILDING
7000
2017 / 006068
SPECIAL WARRANTY DEED
12/15/2016
LAND & BUILDING
3992
2016 / 027302
SHERIFF'S DED
10/27/1997
0
0526 / 0083
10/27/1997
LAND & BUILDING
29500
526 / 83
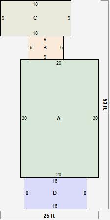
Parcel Sketches
Residential Card 1
A
MAIN
600 square feet
B
OFP OPEN FRAME PORCH EFP ENCL FRAME PORCH
54 square feet
C
FR GR FRAME GARAGE
162 square feet
D
OFP OPEN FRAME PORCH
128 square feet
Parcel Images