Elected Officials
Courts
Departments
Initiatives
Open Government
About
Login / Register
Home
/
Property & Tax Records
/
Property Records
/
Property & Tax Search
/
Parcel Profile
/
Print View
Search for Another Parcel
Parcel Profile
Historical Card
Sketches
Photos
Tax Map
Taxes
Print View
Print This Page
Address: 611 REED ST
Parcel: 14010022032100
Parcel Profile
Address
611 | REED | ST
Street Status
PAVED | SIDEWALK
School District
CITY OF ERIE SCHOOL
Acreage
0.1023
Classification
R
Land Use Code
SINGLE FAMILY
Legal Description
611 REED ST 33 X 135
Square Feet
1360
Topo
LEVEL
Utility
ALL PUBLIC
Zoning
Please contact your municipal zoning officer
Deed Book
2024
Deed Page
020115
2026 Tax Values
Land Value / Taxable
7,200 / 7,200.00
Building Value / Taxable
21,700 / 21,700.00
Total Value / Taxable
28,900 / 28,900.00
Clean & Green
Inactive
Homestead Status
Inactive
Farmstead Status
Inactive
Lerta Amount
0
Lerta Expiration Year
0
Residential Data
Card 1
Style
OLD STYLE
Basement
CRAWL
Year Built
1862
Exterior Wall
ALUMINUM/VINYL
Total Living Area
1360
Full Baths
1
Half Baths
0
Fuel Type
GAS
Heating
CENTRAL
Heating System
FORCED AIR
Stories
2.0
Total Bedrooms
3
Total Family Rooms
0
Total Rooms
6
Fireplaces
0
Other Buildings & Yards
No OBY Data Found
Sales History
Sale Date
Type
Price
Book / Page
Other Info
12/9/2024
LAND & BUILDING
0
2024 / 020115
QUIT CLAIM DEED
2/14/2018
LAND & BUILDING
0
2018 / 002925
TAX DEED
10/10/2013
LAND & BUILDING
0
2013 / 027022
QUIT CLAIM DEED
2/28/2003
LAND & BUILDING
51000
981 / 1210
11/29/2000
LAND & BUILDING
23500
740 / 652
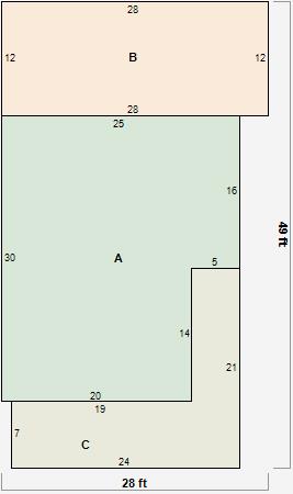
Parcel Sketches
Residential Card 1
A
MAIN
680 square feet
B
EFP ENCL FRAME PORCH
336 square feet
C
OFP OPEN FRAME PORCH
238 square feet
Parcel Images
Please note:
this tab is for informational purposes only and may not show all delinquencies, see the Taxes tab for more accurate delinquent taxes due.