Elected Officials
Courts
Departments
Initiatives
Open Government
About
Login / Register
Home
/
Property & Tax Records
/
Property Records
/
Property & Tax Search
/
Parcel Profile
/
Print View
Search for Another Parcel
Parcel Profile
Historical Card
Sketches
Photos
Tax Map
Taxes
Print View
Print This Page
Address: 734 E 6 ST
Parcel: 14010023013900
Parcel Profile
Address
734 | E | 6 | ST
Street Status
PAVED | SIDEWALK
School District
CITY OF ERIE SCHOOL
Acreage
0.1853
Classification
R
Land Use Code
SINGLE FAMILY
Legal Description
734 E 6 ST 51.25 X 157.5
Square Feet
1658
Topo
LEVEL
Utility
ALL PUBLIC
Zoning
Please contact your municipal zoning officer
Deed Book
0513
Deed Page
0486
2026 Tax Values
Land Value / Taxable
7,200 / 7,200.00
Building Value / Taxable
11,600 / 11,600.00
Total Value / Taxable
18,800 / 18,800.00
Clean & Green
Inactive
Homestead Status
Active
Farmstead Status
Inactive
Lerta Amount
0
Lerta Expiration Year
0
Residential Data
Card 1
Style
CONVENTIONAL
Basement
FULL
Year Built
1890
Exterior Wall
COMPOSITION
Total Living Area
1658
Full Baths
2
Half Baths
0
Fuel Type
GAS
Heating
CENTRAL
Heating System
FORCED AIR
Stories
1.0
Total Bedrooms
4
Total Family Rooms
0
Total Rooms
10
Fireplaces
0
Other Buildings & Yards
No OBY Data Found
Sales History
Sale Date
Type
Price
Book / Page
Other Info
8/11/1997
LAND & BUILDING
15000
0513 / 0486
8/11/1997
0
0513 / 0486
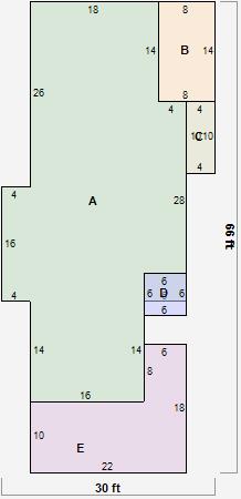
Parcel Sketches
Residential Card 1
A
MAIN
1156 square feet
B
OFP OPEN FRAME PORCH
112 square feet
C
FRBAY FRAME BAY
40 square feet
D
EFP ENCL FRAME PORCH
36 square feet
E
OFP OPEN FRAME PORCH
268 square feet
Parcel Images
Please note:
this tab is for informational purposes only and may not show all delinquencies, see the Taxes tab for more accurate delinquent taxes due.