Elected Officials
Courts
Departments
Initiatives
Open Government
About
Login / Register
Home
/
Property & Tax Records
/
Property Records
/
Property & Tax Search
/
Parcel Profile
/
Print View
Search for Another Parcel
Parcel Profile
Historical Card
Sketches
Photos
Tax Map
Taxes
Print View
Print This Page
Address: 717 E 4 ST
Parcel: 14010023020600
Parcel Profile
Address
717 | E | 4 | ST
Street Status
PAVED | SIDEWALK
School District
CITY OF ERIE SCHOOL
Acreage
0.1085
Classification
R
Land Use Code
TWO FAMILY
Legal Description
717 E 4 ST 30 X 157.5
Square Feet
2136
Topo
LEVEL
Utility
ALL PUBLIC
Zoning
Please contact your municipal zoning officer
Deed Book
2023
Deed Page
018666
2026 Tax Values
Land Value / Taxable
7,400 / 7,400.00
Building Value / Taxable
28,000 / 28,000.00
Total Value / Taxable
35,400 / 35,400.00
Clean & Green
Inactive
Homestead Status
Inactive
Farmstead Status
Inactive
Lerta Amount
0
Lerta Expiration Year
0
Residential Data
Card 1
Style
OLD STYLE
Basement
FULL
Year Built
1920
Exterior Wall
ALUMINUM/VINYL
Total Living Area
2136
Full Baths
2
Half Baths
0
Fuel Type
GAS
Heating
CENTRAL
Heating System
FORCED AIR
Stories
2.0
Total Bedrooms
5
Total Family Rooms
0
Total Rooms
8
Fireplaces
0
Other Buildings & Yards
No OBY Data Found
Sales History
Sale Date
Type
Price
Book / Page
Other Info
10/26/2023
LAND & BUILDING
64950
2023 / 018666
SPECIAL WARRANTY DEED
11/10/2003
LAND & BUILDING
29600
1085 / 0591
AFFIDAVIT
1/31/2003
LAND & BUILDING
0
972 / 467
SHERIFF'S DED
9/25/2000
LAND & BUILDING
50000
728 / 1008
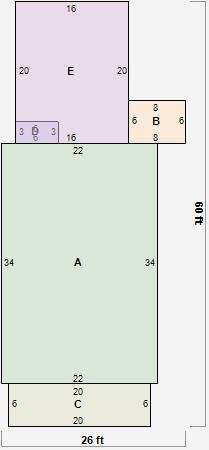
Parcel Sketches
Residential Card 1
A
MAIN
748 square feet
B
OFP OPEN FRAME PORCH
48 square feet
C
OFP OPEN FRAME PORCH
120 square feet
D
OFP OPEN FRAME PORCH OFP OPEN FRAME PORCH
18 square feet
E
1S FR ONE STORY FRAME 1S FR ONE STORY FRAME
320 square feet
Parcel Images
Please note:
this tab is for informational purposes only and may not show all delinquencies, see the Taxes tab for more accurate delinquent taxes due.