Elected Officials
Courts
Departments
Initiatives
Open Government
About
Login / Register
Home
/
Property & Tax Records
/
Property Records
/
Property & Tax Search
/
Parcel Profile
/
Print View
Search for Another Parcel
Parcel Profile
Historical Card
Sketches
Photos
Tax Map
Taxes
Print View
Print This Page
Address: 622 PERRY ST
Parcel: 14010026020400
Parcel Profile
Address
622 | PERRY | ST
Street Status
PAVED | SIDEWALK
School District
CITY OF ERIE SCHOOL
Acreage
0.0803
Classification
R
Land Use Code
SINGLE FAMILY
Legal Description
622 PERRY ST 98 X 49 IRR
Square Feet
1258
Topo
LEVEL
Utility
ALL PUBLIC
Zoning
Please contact your municipal zoning officer
Deed Book
2012
Deed Page
023834
2026 Tax Values
Land Value / Taxable
8,100 / 8,100.00
Building Value / Taxable
22,800 / 22,800.00
Total Value / Taxable
30,900 / 30,900.00
Clean & Green
Inactive
Homestead Status
Active
Farmstead Status
Inactive
Lerta Amount
0
Lerta Expiration Year
0
Residential Data
Card 1
Style
OLD STYLE
Basement
FULL
Year Built
1906
Exterior Wall
ALUMINUM/VINYL
Total Living Area
1258
Full Baths
1
Half Baths
1
Fuel Type
GAS
Heating
CENTRAL
Heating System
FORCED AIR
Stories
2.0
Total Bedrooms
3
Total Family Rooms
0
Total Rooms
7
Fireplaces
0
Other Buildings & Yards
Description
Built
Width
Length
Area
FRAME OR CB DETACHED GARAGE
1965
26
24
624
Sales History
Sale Date
Type
Price
Book / Page
Other Info
8/30/2012
LAND & BUILDING
0
2012 / 023834
QUIT CLAIM DEED
1/7/1994
0
0313 / 1803
1/7/1994
LAND & BUILDING
0
313 / 1803
AFFIDAVIT
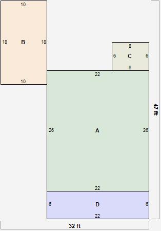
Parcel Sketches
Residential Card 1
A
MAIN
572 square feet
B
FR GR FRAME GARAGE
180 square feet
C
EFP ENCL FRAME PORCH
48 square feet
D
EFP ENCL FRAME PORCH
132 square feet
Parcel Images
Please note:
this tab is for informational purposes only and may not show all delinquencies, see the Taxes tab for more accurate delinquent taxes due.