Elected Officials
Courts
Departments
Initiatives
Open Government
About
Login / Register
Home
/
Property & Tax Records
/
Property Records
/
Property & Tax Search
/
Parcel Profile
/
Print View
Search for Another Parcel
Parcel Profile
Historical Card
Sketches
Photos
Tax Map
Taxes
Print View
Print This Page
Address: 410 WILSON ST
Parcel: 14010028010500
Parcel Profile
Address
410 | WILSON | ST
Street Status
PAVED | SIDEWALK
School District
CITY OF ERIE SCHOOL
Acreage
0.0829
Classification
R
Land Use Code
SINGLE FAMILY
Legal Description
410 WILSON ST 33.75 X 107
Square Feet
1418
Topo
LEVEL
Utility
ALL PUBLIC
Zoning
Please contact your municipal zoning officer
Deed Book
2019
Deed Page
024159
2026 Tax Values
Land Value / Taxable
8,200 / 8,200.00
Building Value / Taxable
25,900 / 25,900.00
Total Value / Taxable
34,100 / 34,100.00
Clean & Green
Inactive
Homestead Status
Active
Farmstead Status
Inactive
Lerta Amount
0
Lerta Expiration Year
0
Residential Data
Card 1
Style
OLD STYLE
Basement
FULL
Year Built
1920
Exterior Wall
ALUMINUM/VINYL
Total Living Area
1418
Full Baths
1
Half Baths
0
Fuel Type
GAS
Heating
CENTRAL
Heating System
FORCED AIR
Stories
2.0
Total Bedrooms
3
Total Family Rooms
1
Total Rooms
7
Fireplaces
0
Other Buildings & Yards
No OBY Data Found
Sales History
Sale Date
Type
Price
Book / Page
Other Info
11/22/2019
LAND & BUILDING
18000
2019 / 024159
SPECIAL WARRANTY DEED
4/22/1968
0
0980 / 0035
4/22/1968
LAND & BUILDING
3500
980 / 35
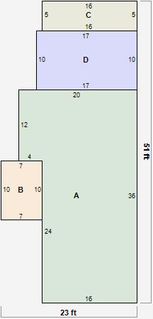
Parcel Sketches
Residential Card 1
A
MAIN
624 square feet
B
EFP ENCL FRAME PORCH
70 square feet
C
EFP ENCL FRAME PORCH
80 square feet
D
1S FR ONE STORY FRAME
170 square feet
Parcel Images
Please note:
this tab is for informational purposes only and may not show all delinquencies, see the Taxes tab for more accurate delinquent taxes due.