Elected Officials
Courts
Departments
Initiatives
Open Government
About
Login / Register
Home
/
Property & Tax Records
/
Property Records
/
Property & Tax Search
/
Parcel Profile
/
Print View
Search for Another Parcel
Parcel Profile
Historical Card
Sketches
Photos
Tax Map
Taxes
Print View
Print This Page
Address: 306 WILSON ST
Parcel: 14010028011500
Parcel Profile
Address
306 | WILSON | ST
Street Status
PAVED | SIDEWALK
School District
CITY OF ERIE SCHOOL
Acreage
0.0774
Classification
R
Land Use Code
SINGLE FAMILY
Legal Description
306 WILSON ST 31.5 X 107
Square Feet
1622
Topo
LEVEL
Utility
ALL PUBLIC
Zoning
Please contact your municipal zoning officer
Deed Book
0644
Deed Page
0208
2026 Tax Values
Land Value / Taxable
8,000 / 8,000.00
Building Value / Taxable
40,080 / 40,080.00
Total Value / Taxable
48,080 / 48,080.00
Clean & Green
Inactive
Homestead Status
Inactive
Farmstead Status
Inactive
Lerta Amount
0
Lerta Expiration Year
0
Residential Data
Card 1
Style
OLD STYLE
Basement
FULL
Year Built
1914
Exterior Wall
ALUMINUM/VINYL
Total Living Area
1622
Full Baths
1
Half Baths
0
Fuel Type
GAS
Heating
CENTRAL
Heating System
FORCED AIR
Stories
2.0
Total Bedrooms
4
Total Family Rooms
1
Total Rooms
8
Fireplaces
0
Other Buildings & Yards
Description
Built
Width
Length
Area
FOUR SIDE CLOSED MTL POLE BLDG
2014
20
20
400
Sales History
Sale Date
Type
Price
Book / Page
Other Info
6/23/1999
0
0644 / 0208
6/23/1999
LAND & BUILDING
1100
644 / 2080
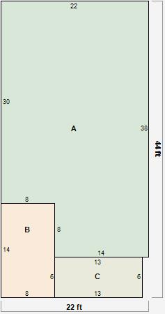
Parcel Sketches
Residential Card 1
A
MAIN
772 square feet
B
OFP OPEN FRAME PORCH
112 square feet
C
1S FR ONE STORY FRAME
78 square feet
Parcel Images
Please note:
this tab is for informational purposes only and may not show all delinquencies, see the Taxes tab for more accurate delinquent taxes due.