Elected Officials
Courts
Departments
Initiatives
Open Government
About
Login / Register
Home
/
Property & Tax Records
/
Property Records
/
Property & Tax Search
/
Parcel Profile
/
Print View
Search for Another Parcel
Parcel Profile
Historical Card
Sketches
Photos
Tax Map
Taxes
Print View
Print This Page
Address: 403 WILSON ST
Parcel: 14010028022400
Parcel Profile
Address
403 | WILSON | ST
Street Status
PAVED | SIDEWALK
School District
CITY OF ERIE SCHOOL
Acreage
0.1110
Classification
R
Land Use Code
SINGLE FAMILY
Legal Description
403 WILSON ST 43.95 X IRR
Square Feet
2125
Topo
LEVEL
Utility
ALL PUBLIC
Zoning
Please contact your municipal zoning officer
Deed Book
1592
Deed Page
1828
2026 Tax Values
Land Value / Taxable
8,900 / 8,900.00
Building Value / Taxable
25,900 / 25,900.00
Total Value / Taxable
34,800 / 34,800.00
Clean & Green
Inactive
Homestead Status
Active
Farmstead Status
Inactive
Lerta Amount
0
Lerta Expiration Year
0
Residential Data
Card 1
Style
CONVENTIONAL
Basement
PART
Year Built
1887
Exterior Wall
COMPOSITION
Total Living Area
2125
Full Baths
1
Half Baths
0
Fuel Type
GAS
Heating
CENTRAL
Heating System
FORCED AIR
Stories
1.5
Total Bedrooms
4
Total Family Rooms
1
Total Rooms
9
Fireplaces
0
Other Buildings & Yards
Description
Built
Width
Length
Area
FRAME OR CB DETACHED GARAGE
1920
21
21
441
Sales History
Sale Date
Type
Price
Book / Page
Other Info
9/23/2009
0
1592 / 1828
11/27/2006
LAND & BUILDING
14000
1378 / 1714
WARRANTY/SURVIVORSHIP DEED
2/24/2006
LAND & BUILDING
0
1355 / 0432
QUIT CLAIM DEED
6/26/1974
LAND & BUILDING
0
1122 / 659
AFFIDAVIT
6/26/1974
0
1122 / 0659
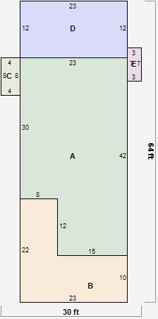
Parcel Sketches
Residential Card 1
A
MAIN
870 square feet
B
1S FR ONE STORY FRAME
326 square feet
C
OFP OPEN FRAME PORCH
32 square feet
D
1S FR ONE STORY FRAME
276 square feet
E
OFP OPEN FRAME PORCH
21 square feet
Parcel Images
Please note:
this tab is for informational purposes only and may not show all delinquencies, see the Taxes tab for more accurate delinquent taxes due.