Elected Officials
Courts
Departments
Initiatives
Open Government
About
Login / Register
Home
/
Property & Tax Records
/
Property Records
/
Property & Tax Search
/
Parcel Profile
/
Print View
Search for Another Parcel
Parcel Profile
Historical Card
Sketches
Photos
Tax Map
Taxes
Print View
Print This Page
Address: 405 WILSON ST
Parcel: 14010028022500
Parcel Profile
Address
405 | WILSON | ST
Street Status
PAVED | SIDEWALK
School District
CITY OF ERIE SCHOOL
Acreage
0.1048
Classification
R
Land Use Code
SINGLE FAMILY
Legal Description
405 WILSON ST 41.25 X 107 ET
Square Feet
1776
Topo
LEVEL
Utility
ALL PUBLIC
Zoning
Please contact your municipal zoning officer
Deed Book
1511
Deed Page
2331
2026 Tax Values
Land Value / Taxable
8,700 / 8,700.00
Building Value / Taxable
32,800 / 32,800.00
Total Value / Taxable
41,500 / 41,500.00
Clean & Green
Inactive
Homestead Status
Inactive
Farmstead Status
Inactive
Lerta Amount
0
Lerta Expiration Year
0
Residential Data
Card 1
Style
OLD STYLE
Basement
FULL
Year Built
1857
Exterior Wall
ALUMINUM/VINYL
Total Living Area
1776
Full Baths
1
Half Baths
0
Fuel Type
GAS
Heating
CENTRAL
Heating System
FORCED AIR
Stories
2.0
Total Bedrooms
3
Total Family Rooms
1
Total Rooms
7
Fireplaces
0
Other Buildings & Yards
Description
Built
Width
Length
Area
FRAME OR CB DETACHED GARAGE
1920
14
21
294
Sales History
Sale Date
Type
Price
Book / Page
Other Info
7/30/2008
LAND & BUILDING
0
1511 / 2331
WARRANTY/SURVIVORSHIP DEED
12/8/1951
0
0611 / 0278
12/8/1951
0
611 / 278
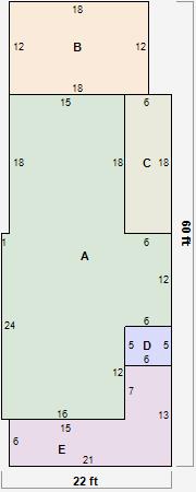
Parcel Sketches
Residential Card 1
A
MAIN
726 square feet
B
1S FR ONE STORY FRAME
216 square feet
C
1S FR ONE STORY FRAME
108 square feet
D
EFP ENCL FRAME PORCH
30 square feet
E
OFP OPEN FRAME PORCH
168 square feet
Parcel Images
Please note:
this tab is for informational purposes only and may not show all delinquencies, see the Taxes tab for more accurate delinquent taxes due.