Elected Officials
Courts
Departments
Initiatives
Open Government
About
Login / Register
Home
/
Property & Tax Records
/
Property Records
/
Property & Tax Search
/
Parcel Profile
/
Print View
Search for Another Parcel
Parcel Profile
Historical Card
Sketches
Photos
Tax Map
Taxes
Print View
Print This Page
Address: 950 E 5 ST
Parcel: 14010032014100
Parcel Profile
Address
950 | E | 5 | ST
Street Status
PAVED | SIDEWALK
School District
CITY OF ERIE SCHOOL
Acreage
0.0554
Classification
R
Land Use Code
SINGLE FAMILY
Legal Description
950 E 5 ST 4O.25 X 66
Square Feet
1444
Topo
LEVEL
Utility
ALL PUBLIC
Zoning
Please contact your municipal zoning officer
Deed Book
2025
Deed Page
006299
2025 Tax Values
Land Value / Taxable
7,500 / 7,500.00
Building Value / Taxable
28,600 / 28,600.00
Total Value / Taxable
36,100 / 36,100.00
Clean & Green
Inactive
Homestead Status
Active
Farmstead Status
Inactive
Lerta Amount
0
Lerta Expiration Year
0
Residential Data
Card 1
Style
BUNGALOW
Basement
FULL
Year Built
1902
Exterior Wall
ALUMINUM/VINYL
Total Living Area
1444
Full Baths
2
Half Baths
1
Fuel Type
GAS
Heating
CENTRAL A/C
Heating System
FORCED AIR
Stories
1.0
Total Bedrooms
2
Total Family Rooms
1
Total Rooms
8
Fireplaces
0
Other Buildings & Yards
No OBY Data Found
Sales History
Sale Date
Type
Price
Book / Page
Other Info
4/22/2025
LAND & BUILDING
0
2025 / 006299
FIDUCIARY DEED
10/25/2019
LAND & BUILDING
25000
2019 / 021855
SPECIAL WARRANTY DEED
8/12/2019
LAND & BUILDING
0
2019 / 015698
DEED
3/6/1996
0
0427 / 0570
3/6/1996
LAND & BUILDING
0
427 / 570
AFFIDAVIT
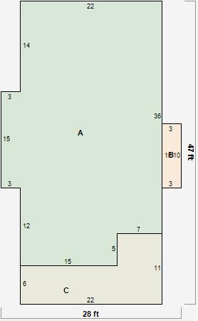
Parcel Sketches
Residential Card 1
A
MAIN
912 square feet
B
UNFIN BSMT BASEMENT UNFINISHED 1S FR ONE STORY FRAME
30 square feet
C
OFP OPEN FRAME PORCH
167 square feet
Parcel Images