Elected Officials
Courts
Departments
Initiatives
Open Government
About
Login / Register
Home
/
Property & Tax Records
/
Property Records
/
Property & Tax Search
/
Parcel Profile
/
Print View
Search for Another Parcel
Parcel Profile
Historical Card
Sketches
Photos
Tax Map
Taxes
Print View
Print This Page
Address: 320 ROSS ST
Parcel: 14010032021200
Parcel Profile
Address
320 | ROSS | ST
Street Status
PAVED | SIDEWALK
School District
CITY OF ERIE SCHOOL
Acreage
0.1528
Classification
R
Land Use Code
SINGLE FAMILY
Legal Description
320 ROSS ST 68 X 138 IRR
Square Feet
1008
Topo
LEVEL
Utility
ALL PUBLIC
Zoning
Please contact your municipal zoning officer
Deed Book
2012
Deed Page
005015
2026 Tax Values
Land Value / Taxable
9,300 / 9,300.00
Building Value / Taxable
29,200 / 29,200.00
Total Value / Taxable
38,500 / 38,500.00
Clean & Green
Inactive
Homestead Status
Inactive
Farmstead Status
Inactive
Lerta Amount
0
Lerta Expiration Year
0
Residential Data
Card 1
Style
OLD STYLE
Basement
FULL
Year Built
1900
Exterior Wall
COMPOSITION
Total Living Area
1008
Full Baths
1
Half Baths
0
Fuel Type
GAS
Heating
CENTRAL
Heating System
FORCED AIR
Stories
2.0
Total Bedrooms
3
Total Family Rooms
0
Total Rooms
6
Fireplaces
0
Other Buildings & Yards
No OBY Data Found
Sales History
Sale Date
Type
Price
Book / Page
Other Info
2/28/2012
LAND & BUILDING
0
2012 / 005015
TAX DEED
3/19/2004
LAND & BUILDING
0
1116 / 1830
WARRANTY/SURVIVORSHIP DEED
3/12/1999
0
0623 / 0326
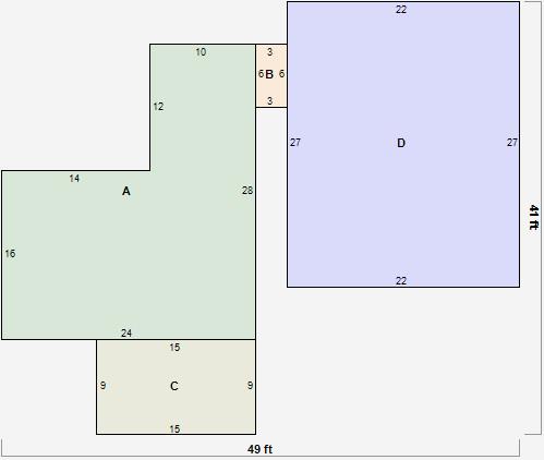
Parcel Sketches
Residential Card 1
A
MAIN
504 square feet
B
EFP ENCL FRAME PORCH
18 square feet
C
EFP ENCL FRAME PORCH
135 square feet
D
FR GR FRAME GARAGE
594 square feet
Parcel Images
Please note:
this tab is for informational purposes only and may not show all delinquencies, see the Taxes tab for more accurate delinquent taxes due.