Elected Officials
Courts
Departments
Initiatives
Open Government
About
Login / Register
Home
/
Property & Tax Records
/
Property Records
/
Property & Tax Search
/
Parcel Profile
/
Print View
Search for Another Parcel
Parcel Profile
Historical Card
Sketches
Photos
Tax Map
Taxes
Print View
Print This Page
Address: 415 NEWMAN ST
Parcel: 14010032023000
Parcel Profile
Address
415 | NEWMAN | ST
Street Status
PAVED | SIDEWALK
School District
CITY OF ERIE SCHOOL
Acreage
0.0973
Classification
R
Land Use Code
SINGLE FAMILY
Legal Description
415 NEWMAN ST 39.25 X 108
Square Feet
980
Topo
LEVEL
Utility
ALL PUBLIC
Zoning
Please contact your municipal zoning officer
Deed Book
2010
Deed Page
031616
2026 Tax Values
Land Value / Taxable
8,500 / 8,500.00
Building Value / Taxable
20,000 / 20,000.00
Total Value / Taxable
28,500 / 28,500.00
Clean & Green
Inactive
Homestead Status
Inactive
Farmstead Status
Inactive
Lerta Amount
0
Lerta Expiration Year
0
Residential Data
Card 1
Style
BUNGALOW
Basement
FULL
Year Built
1887
Exterior Wall
ALUMINUM/VINYL
Total Living Area
980
Full Baths
1
Half Baths
0
Fuel Type
GAS
Heating
CENTRAL
Heating System
FORCED AIR
Stories
1.0
Total Bedrooms
2
Total Family Rooms
0
Total Rooms
5
Fireplaces
0
Other Buildings & Yards
No OBY Data Found
Sales History
Sale Date
Type
Price
Book / Page
Other Info
12/15/2010
LAND & BUILDING
0
2010 / 031616
TAX DEED
6/5/1981
LAND & BUILDING
9100
1422 / 301
6/5/1981
0
1422 / 0301
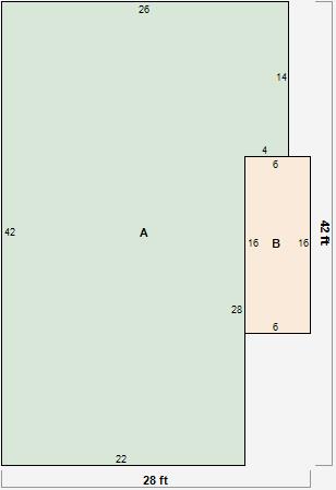
Parcel Sketches
Residential Card 1
A
MAIN
980 square feet
B
OFP OPEN FRAME PORCH
96 square feet
Parcel Images
Please note:
this tab is for informational purposes only and may not show all delinquencies, see the Taxes tab for more accurate delinquent taxes due.