Elected Officials
Courts
Departments
Initiatives
Open Government
About
Login / Register
Home
/
Property & Tax Records
/
Property Records
/
Property & Tax Search
/
Parcel Profile
/
Print View
Search for Another Parcel
Parcel Profile
Historical Card
Sketches
Photos
Tax Map
Taxes
Print View
Print This Page
Address: 1041 E 4 ST
Parcel: 14010036020600
Parcel Profile
Address
1041 | E | 4 | ST
Street Status
PAVED | SIDEWALK
School District
CITY OF ERIE SCHOOL
Acreage
0.0830
Classification
R
Land Use Code
SINGLE FAMILY
Legal Description
1041 E 4 ST 30 X 120.5
Square Feet
880
Topo
LEVEL
Utility
ALL PUBLIC
Zoning
Please contact your municipal zoning officer
Deed Book
1609
Deed Page
0579
2026 Tax Values
Land Value / Taxable
8,200 / 8,200.00
Building Value / Taxable
27,500 / 27,500.00
Total Value / Taxable
35,700 / 35,700.00
Clean & Green
Inactive
Homestead Status
Active
Farmstead Status
Inactive
Lerta Amount
0
Lerta Expiration Year
0
Residential Data
Card 1
Style
OLD STYLE
Basement
FULL
Year Built
1922
Exterior Wall
ALUMINUM/VINYL
Total Living Area
880
Full Baths
1
Half Baths
0
Fuel Type
GAS
Heating
CENTRAL A/C
Heating System
FORCED AIR
Stories
2.0
Total Bedrooms
3
Total Family Rooms
0
Total Rooms
7
Fireplaces
0
Other Buildings & Yards
No OBY Data Found
Sales History
Sale Date
Type
Price
Book / Page
Other Info
12/15/2009
LAND & BUILDING
40000
1609 / 0579
WARRANTY/SURVIVORSHIP DEED
9/9/1999
LAND & BUILDING
18000
661 / 445
2/4/1958
0
0770 / 0524
10/18/1947
0
0497 / 0562
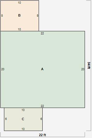
Parcel Sketches
Residential Card 1
A
MAIN
440 square feet
B
EFP ENCL FRAME PORCH
80 square feet
C
EFP ENCL FRAME PORCH
60 square feet
Parcel Images
Please note:
this tab is for informational purposes only and may not show all delinquencies, see the Taxes tab for more accurate delinquent taxes due.