Elected Officials
Courts
Departments
Initiatives
Open Government
About
Login / Register
Home
/
Property & Tax Records
/
Property Records
/
Property & Tax Search
/
Parcel Profile
/
Print View
Search for Another Parcel
Parcel Profile
Historical Card
Sketches
Photos
Tax Map
Taxes
Print View
Print This Page
Address: 1009 E 4 ST
Parcel: 14010036021500
Parcel Profile
Address
1009 | E | 4 | ST
Street Status
PAVED | ALLEY
School District
CITY OF ERIE SCHOOL
Acreage
0.0634
Classification
R
Land Use Code
SINGLE FAMILY
Legal Description
1009 E 4 ST 30 X 92
Square Feet
1116
Topo
LEVEL
Utility
ALL PUBLIC
Zoning
Please contact your municipal zoning officer
Deed Book
2021
Deed Page
029627
2026 Tax Values
Land Value / Taxable
7,700 / 7,700.00
Building Value / Taxable
27,220 / 27,220.00
Total Value / Taxable
34,920 / 34,920.00
Clean & Green
Inactive
Homestead Status
Inactive
Farmstead Status
Inactive
Lerta Amount
0
Lerta Expiration Year
0
Residential Data
Card 1
Style
OLD STYLE
Basement
FULL
Year Built
1899
Exterior Wall
ALUMINUM/VINYL
Total Living Area
1116
Full Baths
1
Half Baths
0
Fuel Type
GAS
Heating
CENTRAL
Heating System
FORCED AIR
Stories
1.5
Total Bedrooms
3
Total Family Rooms
0
Total Rooms
7
Fireplaces
0
Other Buildings & Yards
Description
Built
Width
Length
Area
FRAME OR CB DETACHED GARAGE
1995
12
18
216
Sales History
Sale Date
Type
Price
Book / Page
Other Info
11/4/2021
LAND & BUILDING
4000
2021 / 029627
SPECIAL WARRANTY DEED
7/13/2010
LAND & BUILDING
30000
2010 / 017021
DEED
3/31/1994
10500
0326 / 2178
3/21/1986
10500
1622 / 0307
10/30/1956
0
0742 / 0396
11/4/1944
0
0451 / 0475
11/8/1943
0
0391 / 0365
10/13/1942
0
0422 / 0146
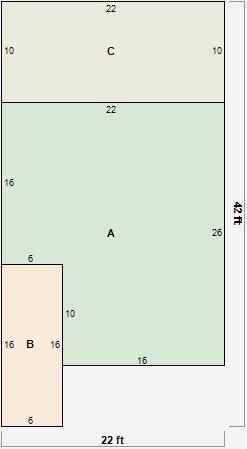
Parcel Sketches
Residential Card 1
A
MAIN
512 square feet
B
EFP ENCL FRAME PORCH
96 square feet
C
UNFIN BSMT BASEMENT UNFINISHED 1S FR ONE STORY FRAME
220 square feet
Parcel Images
Please note:
this tab is for informational purposes only and may not show all delinquencies, see the Taxes tab for more accurate delinquent taxes due.