Elected Officials
Courts
Departments
Initiatives
Open Government
About
Login / Register
Home
/
Property & Tax Records
/
Property Records
/
Property & Tax Search
/
Parcel Profile
/
Print View
Search for Another Parcel
Parcel Profile
Historical Card
Sketches
Photos
Tax Map
Taxes
Print View
Print This Page
Address: 733 PENNSYLVANIA AVE
Parcel: 14010039011600
Parcel Profile
Address
733 | PENNSYLVANIA | AVE
Street Status
PAVED
School District
CITY OF ERIE SCHOOL
Acreage
0.0975
Classification
R
Land Use Code
MULTIPLE DWELLINGS
Legal Description
733 PENNSYLVANIA AVE 41.22 X 103
Square Feet
2640
Topo
LEVEL
Utility
ALL PUBLIC
Zoning
Please contact your municipal zoning officer
Deed Book
2020
Deed Page
023192
2026 Tax Values
Land Value / Taxable
8,600 / 8,600.00
Building Value / Taxable
54,400 / 54,400.00
Total Value / Taxable
63,000 / 63,000.00
Clean & Green
Inactive
Homestead Status
Inactive
Farmstead Status
Inactive
Lerta Amount
0
Lerta Expiration Year
0
Residential Data
Card 1
Style
OLD STYLE
Basement
PART
Year Built
1912
Exterior Wall
ALUMINUM/VINYL
Total Living Area
1704
Full Baths
2
Half Baths
0
Fuel Type
GAS
Heating
CENTRAL
Heating System
HOT WATER
Stories
2.0
Total Bedrooms
4
Total Family Rooms
0
Total Rooms
8
Fireplaces
0
Card 2
Style
BUNGALOW
Basement
PART
Year Built
1904
Exterior Wall
ALUMINUM/VINYL
Total Living Area
936
Full Baths
1
Half Baths
0
Fuel Type
GAS
Heating
CENTRAL
Heating System
HOT WATER
Stories
1.5
Total Bedrooms
1
Total Family Rooms
0
Total Rooms
4
Fireplaces
0
Other Buildings & Yards
No OBY Data Found
Sales History
Sale Date
Type
Price
Book / Page
Other Info
11/2/2020
LAND & BUILDING
39000
2020 / 023192
SPECIAL WARRANTY DEED
5/4/1983
25500
1493 / 0143
12/11/1975
3500
1188 / 0013
11/7/1975
0
1182 / 0158
11/7/1975
0
1182 / 0158
5/23/1975
0
1188 / 0013
5/23/1975
0
1152 / 0297
3/26/1942
0
0416 / 0501
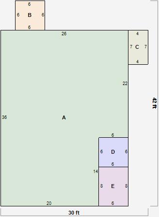
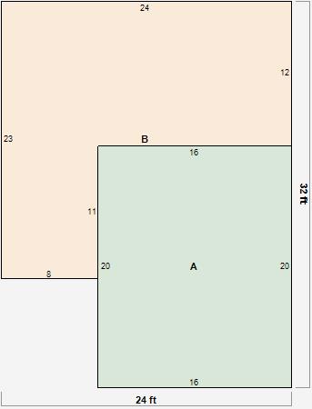
Parcel Sketches
Residential Card 1
A
MAIN
852 square feet
B
EFP ENCL FRAME PORCH
36 square feet
C
EFP ENCL FRAME PORCH
28 square feet
D
EFP ENCL FRAME PORCH
36 square feet
E
OFP OPEN FRAME PORCH
48 square feet
Residential Card 2
A
MAIN
320 square feet
B
UNFIN BSMT BASEMENT UNFINISHED 1S FR ONE STORY FRAME
376 square feet
Parcel Images
Please note:
this tab is for informational purposes only and may not show all delinquencies, see the Taxes tab for more accurate delinquent taxes due.