Elected Officials
Courts
Departments
Initiatives
Open Government
About
Login / Register
Home
/
Property & Tax Records
/
Property Records
/
Property & Tax Search
/
Parcel Profile
/
Print View
Search for Another Parcel
Parcel Profile
Historical Card
Sketches
Photos
Tax Map
Taxes
Print View
Print This Page
Address: 1156 ATKINS ST
Parcel: 14010039033800
Parcel Profile
Address
1156 | ATKINS | ST
Street Status
PAVED | SIDEWALK
School District
CITY OF ERIE SCHOOL
Acreage
0.1020
Classification
R
Land Use Code
SINGLE FAMILY
Legal Description
1156 ATKINS ST 40 X 111
Square Feet
1442
Topo
LEVEL
Utility
ALL PUBLIC
Zoning
Please contact your municipal zoning officer
Deed Book
2011
Deed Page
014817
2026 Tax Values
Land Value / Taxable
8,700 / 8,700.00
Building Value / Taxable
56,650 / 56,650.00
Total Value / Taxable
65,350 / 65,350.00
Clean & Green
Inactive
Homestead Status
Active
Farmstead Status
Inactive
Lerta Amount
0
Lerta Expiration Year
0
Residential Data
Card 1
Style
CONVENTIONAL
Basement
FULL
Year Built
1977
Exterior Wall
ALUMINUM/VINYL
Total Living Area
1442
Full Baths
1
Half Baths
1
Fuel Type
GAS
Heating
CENTRAL
Heating System
FORCED AIR
Stories
2.0
Total Bedrooms
3
Total Family Rooms
1
Total Rooms
5
Fireplaces
0
Other Buildings & Yards
Description
Built
Width
Length
Area
FRAME OR CB DETACHED GARAGE
1978
18
25
450
Sales History
Sale Date
Type
Price
Book / Page
Other Info
6/30/2011
LAND & BUILDING
63050
2011 / 014817
DEED
8/10/1993
48500
0284 / 2294
9/20/1977
34900
1281 / 0001
6/16/1977
0
1267 / 0458
9/6/1972
0
1077 / 0500
2/26/1952
0
0617 / 0217
6/26/1947
0
0495 / 0080
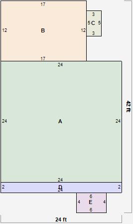
Parcel Sketches
Residential Card 1
A
MAIN
576 square feet
B
EFP ENCL FRAME PORCH
204 square feet
C
MA STOOP/TERR MAS STOOP
15 square feet
D
FROVR FRAME OVERHANG
48 square feet
E
MA STOOP/TERR MAS STOOP
24 square feet
Parcel Images
Please note:
this tab is for informational purposes only and may not show all delinquencies, see the Taxes tab for more accurate delinquent taxes due.