Elected Officials
Courts
Departments
Initiatives
Open Government
About
Login / Register
Home
/
Property & Tax Records
/
Property Records
/
Property & Tax Search
/
Parcel Profile
/
Print View
Search for Another Parcel
Parcel Profile
Historical Card
Sketches
Photos
Tax Map
Taxes
Print View
Print This Page
Address: 1122 E LAKE RD
Parcel: 14010040012300
Parcel Profile
Address
1122 | E | LAKE | RD
Street Status
PAVED | SIDEWALK
School District
CITY OF ERIE SCHOOL
Acreage
0.0909
Classification
R
Land Use Code
THREE FAMILY
Legal Description
1122 E LAKE RD 31.56X125.5
Square Feet
1570
Topo
LEVEL
Utility
ALL PUBLIC
Zoning
Please contact your municipal zoning officer
Deed Book
2013
Deed Page
017738
2026 Tax Values
Land Value / Taxable
8,400 / 8,400.00
Building Value / Taxable
22,400 / 22,400.00
Total Value / Taxable
30,800 / 30,800.00
Clean & Green
Inactive
Homestead Status
Inactive
Farmstead Status
Inactive
Lerta Amount
0
Lerta Expiration Year
0
Residential Data
Card 1
Style
OLD STYLE
Basement
FULL
Year Built
1912
Exterior Wall
COMPOSITION
Total Living Area
1570
Full Baths
2
Half Baths
0
Fuel Type
GAS
Heating
CENTRAL
Heating System
FORCED AIR
Stories
2.0
Total Bedrooms
4
Total Family Rooms
0
Total Rooms
8
Fireplaces
0
Other Buildings & Yards
No OBY Data Found
Sales History
Sale Date
Type
Price
Book / Page
Other Info
7/11/2013
LAND & BUILDING
39500
2013 / 017738
DEED
1/1/1966
10500
938 / 513
9/8/1959
0
0806 / 0228
4/14/1955
0
0698 / 0321
6/25/1946
0
0477 / 0192
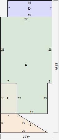
Parcel Sketches
Residential Card 1
A
MAIN
785 square feet
B
EFP ENCL FRAME PORCH
160 square feet
C
EFP ENCL FRAME PORCH
91 square feet
D
EFP ENCL FRAME PORCH
133 square feet
Parcel Images