Elected Officials
Courts
Departments
Initiatives
Open Government
About
Login / Register
Home
/
Property & Tax Records
/
Property Records
/
Property & Tax Search
/
Parcel Profile
/
Print View
Search for Another Parcel
Parcel Profile
Historical Card
Sketches
Photos
Tax Map
Taxes
Print View
Print This Page
Address: 1119 E 4 ST
Parcel: 14010040021000
Parcel Profile
Address
1119 | E | 4 | ST
Street Status
PAVED | SIDEWALK
School District
CITY OF ERIE SCHOOL
Acreage
0.0913
Classification
R
Land Use Code
SINGLE FAMILY
Legal Description
1119 E 4 ST 33 X 120.5
Square Feet
1680
Topo
LEVEL
Utility
ALL PUBLIC
Zoning
Please contact your municipal zoning officer
Deed Book
2012
Deed Page
014731
2026 Tax Values
Land Value / Taxable
8,400 / 8,400.00
Building Value / Taxable
35,800 / 35,800.00
Total Value / Taxable
44,200 / 44,200.00
Clean & Green
Inactive
Homestead Status
Active
Farmstead Status
Inactive
Lerta Amount
0
Lerta Expiration Year
0
Residential Data
Card 1
Style
OLD STYLE
Basement
FULL
Year Built
1920
Exterior Wall
ALUMINUM/VINYL
Total Living Area
1680
Full Baths
1
Half Baths
1
Fuel Type
GAS
Heating
CENTRAL
Heating System
FORCED AIR
Stories
2.0
Total Bedrooms
3
Total Family Rooms
0
Total Rooms
7
Fireplaces
0
Other Buildings & Yards
No OBY Data Found
Sales History
Sale Date
Type
Price
Book / Page
Other Info
6/7/2012
LAND & BUILDING
59000
2012 / 014731
WARRANTY/SURVIVORSHIP DEED
11/25/1968
0
0993 / 0317
3/1/1968
0
0993 / 0317
2/21/1942
0
0405 / 0575
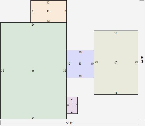
Parcel Sketches
Residential Card 1
A
MAIN
840 square feet
B
EFP ENCL FRAME PORCH
104 square feet
C
FR GR FRAME GARAGE
368 square feet
D
EFP ENCL FRAME PORCH
100 square feet
E
MA STOOP/TERR MAS STOOP
24 square feet
Parcel Images
Please note:
this tab is for informational purposes only and may not show all delinquencies, see the Taxes tab for more accurate delinquent taxes due.