Elected Officials
Courts
Departments
Initiatives
Open Government
About
Login / Register
Home
/
Property & Tax Records
/
Property Records
/
Property & Tax Search
/
Parcel Profile
/
Print View
Search for Another Parcel
Parcel Profile
Historical Card
Sketches
Photos
Tax Map
Taxes
Print View
Print This Page
Address: 1205 E LAKE RD
Parcel: 14010043020800
Parcel Profile
Address
1205 | E | LAKE | RD
Street Status
PAVED | SIDEWALK
School District
CITY OF ERIE SCHOOL
Acreage
0.0961
Classification
R
Land Use Code
TWO FAMILY
Legal Description
1205 E LAKE RD 36X116.28
Square Feet
1972
Topo
LEVEL
Utility
ALL PUBLIC
Zoning
Please contact your municipal zoning officer
Deed Book
0524
Deed Page
1157
2025 Tax Values
Land Value / Taxable
8,500 / 8,500.00
Building Value / Taxable
31,010 / 31,010.00
Total Value / Taxable
39,510 / 39,510.00
Clean & Green
Inactive
Homestead Status
Inactive
Farmstead Status
Inactive
Lerta Amount
0
Lerta Expiration Year
0
Residential Data
Card 1
Style
OLD STYLE
Basement
FULL
Year Built
1915
Exterior Wall
COMPOSITION
Total Living Area
1972
Full Baths
2
Half Baths
0
Fuel Type
GAS
Heating
CENTRAL
Heating System
FORCED AIR
Stories
2.0
Total Bedrooms
4
Total Family Rooms
1
Total Rooms
10
Fireplaces
0
Other Buildings & Yards
No OBY Data Found
Sales History
Sale Date
Type
Price
Book / Page
Other Info
10/17/1997
0
0524 / 1157
9/19/1973
0
1106 / 0028
12/24/1951
0
0612 / 0174
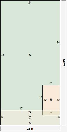
Parcel Sketches
Residential Card 1
A
MAIN
986 square feet
B
EFP ENCL FRAME PORCH
84 square feet
C
OFP OPEN FRAME PORCH
144 square feet
Parcel Images