Elected Officials
Courts
Departments
Initiatives
Open Government
About
Login / Register
Home
/
Property & Tax Records
/
Property Records
/
Property & Tax Search
/
Parcel Profile
/
Print View
Search for Another Parcel
Parcel Profile
Historical Card
Sketches
Photos
Tax Map
Taxes
Print View
Print This Page
Address: 425 HESS AVE
Parcel: 14010044011900
Parcel Profile
Address
425 | HESS | AVE
Street Status
PAVED | SIDEWALK
School District
CITY OF ERIE SCHOOL
Acreage
0.1060
Classification
R
Land Use Code
SINGLE FAMILY
Legal Description
425 HESS AVE 40.5 X 114
Square Feet
672
Topo
LEVEL
Utility
ALL PUBLIC
Zoning
Please contact your municipal zoning officer
Deed Book
0127
Deed Page
0174
2026 Tax Values
Land Value / Taxable
8,800 / 8,800.00
Building Value / Taxable
29,200 / 29,200.00
Total Value / Taxable
38,000 / 38,000.00
Clean & Green
Inactive
Homestead Status
Active
Farmstead Status
Inactive
Lerta Amount
0.00
Lerta Expiration Year
2007
Residential Data
Card 1
Style
BUNGALOW
Basement
NONE
Year Built
1950
Exterior Wall
ALUMINUM/VINYL
Total Living Area
672
Full Baths
1
Half Baths
0
Fuel Type
GAS
Heating
CENTRAL
Heating System
FORCED AIR
Stories
1.0
Total Bedrooms
2
Total Family Rooms
1
Total Rooms
4
Fireplaces
0
Other Buildings & Yards
Description
Built
Width
Length
Area
FRAME OR CB DETACHED GARAGE
2002
25
24
600
Sales History
Sale Date
Type
Price
Book / Page
Other Info
6/21/1990
17900
0127 / 0174
9/2/1977
15500
1279 / 0020
9/11/1964
0
0903 / 0599
6/20/1953
0
0653 / 0115
4/10/1953
0
0647 / 0159
1/31/1951
0
0585 / 0337
7/14/1950
0
0570 / 0082
6/29/1950
0
0569 / 0377
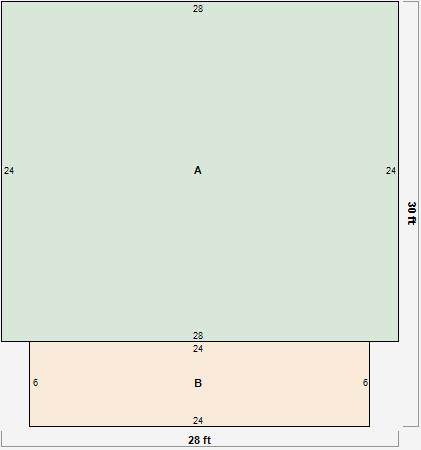
Parcel Sketches
Residential Card 1
A
MAIN
672 square feet
B
OFP OPEN FRAME PORCH
144 square feet
Parcel Images
Please note:
this tab is for informational purposes only and may not show all delinquencies, see the Taxes tab for more accurate delinquent taxes due.