Elected Officials
Courts
Departments
Initiatives
Open Government
About
Login / Register
Home
/
Property & Tax Records
/
Property Records
/
Property & Tax Search
/
Parcel Profile
/
Print View
Search for Another Parcel
Parcel Profile
Historical Card
Sketches
Photos
Tax Map
Taxes
Print View
Print This Page
Address: 120 HESS AVE
Parcel: 14010045020800
Parcel Profile
Address
120 | HESS | AVE
Street Status
PAVED | SIDEWALK
School District
CITY OF ERIE SCHOOL
Acreage
0.0844
Classification
R
Land Use Code
SINGLE FAMILY
Legal Description
120 HESS AVE 35 X 105
Square Feet
1144
Topo
LEVEL
Utility
ALL PUBLIC
Zoning
Please contact your municipal zoning officer
Deed Book
2024
Deed Page
012033
2026 Tax Values
Land Value / Taxable
8,200 / 8,200.00
Building Value / Taxable
41,380 / 41,380.00
Total Value / Taxable
49,580 / 49,580.00
Clean & Green
Inactive
Homestead Status
Inactive
Farmstead Status
Inactive
Lerta Amount
0
Lerta Expiration Year
0
Residential Data
Card 1
Style
OLD STYLE
Basement
FULL
Year Built
1912
Exterior Wall
ALUMINUM/VINYL
Total Living Area
1144
Full Baths
1
Half Baths
0
Fuel Type
GAS
Heating
CENTRAL
Heating System
FORCED AIR
Stories
2.0
Total Bedrooms
3
Total Family Rooms
0
Total Rooms
6
Fireplaces
0
Other Buildings & Yards
Description
Built
Width
Length
Area
FRAME OR CB DETACHED GARAGE
1992
12
18
216
Sales History
Sale Date
Type
Price
Book / Page
Other Info
8/2/2024
LAND & BUILDING
0
2024 / 012033
QUIT CLAIM DEED
8/6/2020
LAND & BUILDING
7000
2020 / 015114
QUIT CLAIM DEED
3/14/2017
LAND & BUILDING
18000
2017 / 005214
SPECIAL WARRANTY DEED
1/10/1990
0
0110 / 0348
6/30/1945
0
0459 / 0508
2/25/1942
0
0416 / 0248
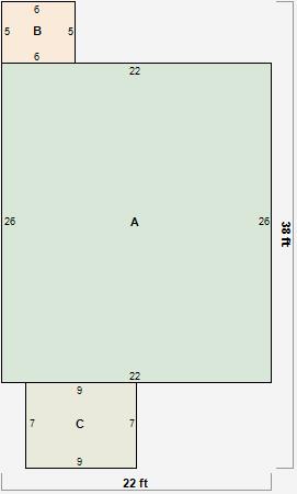
Parcel Sketches
Residential Card 1
A
MAIN
572 square feet
B
EFP ENCL FRAME PORCH
30 square feet
C
OFP OPEN FRAME PORCH
63 square feet
Parcel Images
Please note:
this tab is for informational purposes only and may not show all delinquencies, see the Taxes tab for more accurate delinquent taxes due.