Elected Officials
Courts
Departments
Initiatives
Open Government
About
Login / Register
Home
/
Property & Tax Records
/
Property Records
/
Property & Tax Search
/
Parcel Profile
/
Print View
Search for Another Parcel
Parcel Profile
Historical Card
Sketches
Photos
Tax Map
Taxes
Print View
Print This Page
Address: 231 E FRONT ST
Parcel: 14010051011200
Parcel Profile
Address
231 | E | FRONT | ST
Street Status
PAVED | SIDEWALK
School District
CITY OF ERIE SCHOOL
Acreage
0.1212
Classification
R
Land Use Code
SINGLE FAMILY
Legal Description
231 E FRONT ST 32 X 165
Square Feet
976
Topo
LEVEL
Utility
ALL PUBLIC
Zoning
Please contact your municipal zoning officer
Deed Book
0204
Deed Page
1278
2026 Tax Values
Land Value / Taxable
7,500 / 7,500.00
Building Value / Taxable
28,400 / 28,400.00
Total Value / Taxable
35,900 / 35,900.00
Clean & Green
Inactive
Homestead Status
Active
Farmstead Status
Inactive
Lerta Amount
0
Lerta Expiration Year
0
Residential Data
Card 1
Style
BUNGALOW
Basement
FULL
Year Built
1890
Exterior Wall
ALUMINUM/VINYL
Total Living Area
976
Full Baths
1
Half Baths
0
Fuel Type
GAS
Heating
CENTRAL A/C
Heating System
FORCED AIR
Stories
1.0
Total Bedrooms
3
Total Family Rooms
0
Total Rooms
7
Fireplaces
0
Other Buildings & Yards
Description
Built
Width
Length
Area
FRAME OR CB DETACHED GARAGE
2000
24
26
624
Sales History
Sale Date
Type
Price
Book / Page
Other Info
4/7/1992
0
0204 / 1278
7/12/1961
0
0344 / 0123
6/5/1961
0
0839 / 0240
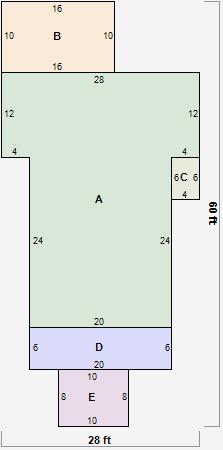
Parcel Sketches
Residential Card 1
A
MAIN
816 square feet
B
1S FR ONE STORY FRAME
160 square feet
C
EFP ENCL FRAME PORCH
24 square feet
D
EFP ENCL FRAME PORCH
120 square feet
E
WDDCK WOOD DECKS
80 square feet
Parcel Images
Please note:
this tab is for informational purposes only and may not show all delinquencies, see the Taxes tab for more accurate delinquent taxes due.