Elected Officials
Courts
Departments
Initiatives
Open Government
About
Login / Register
Home
/
Property & Tax Records
/
Property Records
/
Property & Tax Search
/
Parcel Profile
/
Print View
Search for Another Parcel
Parcel Profile
Historical Card
Sketches
Photos
Tax Map
Taxes
Print View
Print This Page
Address: 225 E FRONT ST
Parcel: 14010051011300
Parcel Profile
Address
225 | E | FRONT | ST
Street Status
PAVED | SIDEWALK
School District
CITY OF ERIE SCHOOL
Acreage
0.1231
Classification
R
Land Use Code
SINGLE FAMILY
Legal Description
225 E FRONT ST 32.5 X 165
Square Feet
816
Topo
LEVEL
Utility
ALL PUBLIC
Zoning
Please contact your municipal zoning officer
Deed Book
1182
Deed Page
0544
2026 Tax Values
Land Value / Taxable
7,600 / 7,600.00
Building Value / Taxable
43,600 / 43,600.00
Total Value / Taxable
51,200 / 51,200.00
Clean & Green
Inactive
Homestead Status
Inactive
Farmstead Status
Inactive
Lerta Amount
0.00
Lerta Expiration Year
2017
Residential Data
Card 1
Style
BUNGALOW
Basement
FULL
Year Built
1890
Exterior Wall
ALUMINUM/VINYL
Total Living Area
816
Full Baths
1
Half Baths
1
Fuel Type
GAS
Heating
CENTRAL A/C
Heating System
FORCED AIR
Stories
1.0
Total Bedrooms
3
Total Family Rooms
0
Total Rooms
6
Fireplaces
0
Other Buildings & Yards
Description
Built
Width
Length
Area
FRAME OR CB DETACHED GARAGE
2006
24
30
720
1S LEAN TO
2015
6
22
132
FRAME UTILITY SHED
2015
8
12
96
Sales History
Sale Date
Type
Price
Book / Page
Other Info
10/18/2004
LAND & BUILDING
32000
1182 / 0544
DEED
6/7/1994
0
0338 / 1755
8/7/1978
0
1315 / 0533
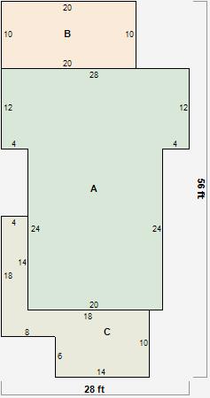
Parcel Sketches
Residential Card 1
A
MAIN
816 square feet
B
WDDCK WOOD DECKS
200 square feet
C
WDDCK WOOD DECKS
228 square feet
Parcel Images
Please note:
this tab is for informational purposes only and may not show all delinquencies, see the Taxes tab for more accurate delinquent taxes due.