Elected Officials
Courts
Departments
Initiatives
Open Government
About
Login / Register
Home
/
Property & Tax Records
/
Property Records
/
Property & Tax Search
/
Parcel Profile
/
Print View
Search for Another Parcel
Parcel Profile
Historical Card
Sketches
Photos
Tax Map
Taxes
Print View
Print This Page
Address: 217 E FRONT ST
Parcel: 14010051011500
Parcel Profile
Address
217 | E | FRONT | ST
Street Status
PAVED | SIDEWALK
School District
CITY OF ERIE SCHOOL
Acreage
0.1289
Classification
R
Land Use Code
SINGLE FAMILY
Legal Description
217 E FRONT ST 41 X 137
Square Feet
1062
Topo
LEVEL
Utility
ALL PUBLIC
Zoning
Please contact your municipal zoning officer
Deed Book
2021
Deed Page
019089
2026 Tax Values
Land Value / Taxable
7,600 / 7,600.00
Building Value / Taxable
24,800 / 24,800.00
Total Value / Taxable
32,400 / 32,400.00
Clean & Green
Inactive
Homestead Status
Inactive
Farmstead Status
Inactive
Lerta Amount
0
Lerta Expiration Year
0
Residential Data
Card 1
Style
BUNGALOW
Basement
FULL
Year Built
1890
Exterior Wall
ALUMINUM/VINYL
Total Living Area
1062
Full Baths
1
Half Baths
0
Fuel Type
GAS
Heating
CENTRAL
Heating System
FORCED AIR
Stories
1.0
Total Bedrooms
3
Total Family Rooms
0
Total Rooms
6
Fireplaces
0
Other Buildings & Yards
No OBY Data Found
Sales History
Sale Date
Type
Price
Book / Page
Other Info
7/20/2021
LAND & BUILDING
80000
2021 / 019089
FIDUCIARY DEED
12/7/1990
0
0145 / 1542
12/7/1990
0
0145 / 1544
8/8/1990
0
0132 / 2016
6/15/1990
0
0126 / 0882
1/7/1985
0
1565 / 0458
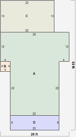
Parcel Sketches
Residential Card 1
A
MAIN
776 square feet
B
EFP ENCL FRAME PORCH
16 square feet
C
1S FR ONE STORY FRAME
286 square feet
D
OFP OPEN FRAME PORCH
120 square feet
Parcel Images
Please note:
this tab is for informational purposes only and may not show all delinquencies, see the Taxes tab for more accurate delinquent taxes due.