Elected Officials
Courts
Departments
Initiatives
Open Government
About
Login / Register
Home
/
Property & Tax Records
/
Property Records
/
Property & Tax Search
/
Parcel Profile
/
Print View
Search for Another Parcel
Parcel Profile
Historical Card
Sketches
Photos
Tax Map
Taxes
Print View
Print This Page
Address: 224 E 2 ST
Parcel: 14010051012500
Parcel Profile
Address
224 | E | 2 | ST
Street Status
PAVED | SIDEWALK
School District
CITY OF ERIE SCHOOL
Acreage
0.2132
Classification
R
Land Use Code
SINGLE FAMILY
Legal Description
224 E 2 ST 75.5 X 123
Square Feet
1552
Topo
LEVEL
Utility
ALL PUBLIC
Zoning
Please contact your municipal zoning officer
Deed Book
2019
Deed Page
017903
2026 Tax Values
Land Value / Taxable
8,100 / 8,100.00
Building Value / Taxable
31,000 / 31,000.00
Total Value / Taxable
39,100 / 39,100.00
Clean & Green
Inactive
Homestead Status
Active
Farmstead Status
Inactive
Lerta Amount
0
Lerta Expiration Year
0
Residential Data
Card 1
Style
BUNGALOW
Basement
PART
Year Built
1899
Exterior Wall
ALUMINUM/VINYL
Total Living Area
1552
Full Baths
1
Half Baths
0
Fuel Type
GAS
Heating
CENTRAL
Heating System
FORCED AIR
Stories
1.0
Total Bedrooms
2
Total Family Rooms
0
Total Rooms
7
Fireplaces
0
Other Buildings & Yards
Description
Built
Width
Length
Area
FRAME OR CB DETACHED GARAGE
1999
20
20
400
Sales History
Sale Date
Type
Price
Book / Page
Other Info
9/9/2019
LAND & BUILDING
85000
2019 / 017903
SPECIAL WARRANTY DEED
7/18/2000
0
0715 / 1234
9/1/1998
0
0584 / 1438
7/31/1990
0
0131 / 1959
5/9/1989
0
0085 / 1455
2/10/1988
0
0041 / 0931
3/10/1953
0
061 / 0258
1/31/1952
0
0616 / 0385
6/30/1941
0
0507 / 0050
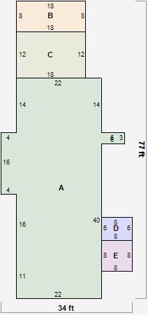
Parcel Sketches
Residential Card 1
A
MAIN
1336 square feet
B
OFP OPEN FRAME PORCH
144 square feet
C
1S FR ONE STORY FRAME
216 square feet
D
EMP ENCL MASONRY PORCH
48 square feet
E
OMP OPEN MASONRY PORCH
64 square feet
Parcel Images
Please note:
this tab is for informational purposes only and may not show all delinquencies, see the Taxes tab for more accurate delinquent taxes due.