Elected Officials
Courts
Departments
Initiatives
Open Government
About
Login / Register
Home
/
Property & Tax Records
/
Property Records
/
Property & Tax Search
/
Parcel Profile
/
Print View
Search for Another Parcel
Parcel Profile
Historical Card
Sketches
Photos
Tax Map
Taxes
Print View
Print This Page
Address: 118 PARADE ST
Parcel: 14010052010400
Parcel Profile
Address
118 | PARADE | ST
Street Status
PAVED | SIDEWALK
School District
CITY OF ERIE SCHOOL
Acreage
0.0625
Classification
R
Land Use Code
SINGLE FAMILY
Legal Description
118 PARADE ST 33 X 82.5
Square Feet
1428
Topo
LEVEL
Utility
ALL PUBLIC
Zoning
Please contact your municipal zoning officer
Deed Book
2019
Deed Page
017834
2026 Tax Values
Land Value / Taxable
6,400 / 6,400.00
Building Value / Taxable
24,400 / 24,400.00
Total Value / Taxable
30,800 / 30,800.00
Clean & Green
Inactive
Homestead Status
Inactive
Farmstead Status
Inactive
Lerta Amount
0
Lerta Expiration Year
0
Residential Data
Card 1
Style
OLD STYLE
Basement
PART
Year Built
1893
Exterior Wall
ALUMINUM/VINYL
Total Living Area
1428
Full Baths
1
Half Baths
0
Fuel Type
GAS
Heating
CENTRAL
Heating System
FORCED AIR
Stories
1.5
Total Bedrooms
4
Total Family Rooms
1
Total Rooms
7
Fireplaces
0
Other Buildings & Yards
No OBY Data Found
Sales History
Sale Date
Type
Price
Book / Page
Other Info
9/6/2019
LAND & BUILDING
0
2019 / 017834
SPECIAL WARRANTY DEED
9/27/2016
LAND & BUILDING
18000
2016 / 021036
SPECIAL WARRANTY DEED
4/4/2012
LAND & BUILDING
10000
2012 / 008380
SPECIAL WARRANTY DEED
5/2/1981
0
1419 / 0042
10/7/1965
0
0926 / 0449
4/6/1954
0
0675 / 0420
3/2/1938
0
0381 / 0680
3/1/1938
0
0381 / 0679
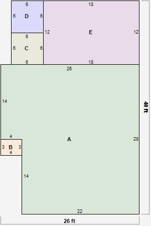
Parcel Sketches
Residential Card 1
A
MAIN
672 square feet
B
MA STOOP/TERR MAS STOOP
12 square feet
C
OFP OPEN FRAME PORCH
36 square feet
D
1S FR ONE STORY FRAME
36 square feet
E
1S FR ONE STORY FRAME
216 square feet
Parcel Images
Please note:
this tab is for informational purposes only and may not show all delinquencies, see the Taxes tab for more accurate delinquent taxes due.