Elected Officials
Courts
Departments
Initiatives
Open Government
About
Login / Register
Home
/
Property & Tax Records
/
Property Records
/
Property & Tax Search
/
Parcel Profile
/
Print View
Search for Another Parcel
Parcel Profile
Historical Card
Sketches
Photos
Tax Map
Taxes
Print View
Print This Page
Address: 102 PARADE ST
Parcel: 14010052010900
Parcel Profile
Address
102 | PARADE | ST
Street Status
PAVED | SIDEWALK
School District
CITY OF ERIE SCHOOL
Acreage
0.0527
Classification
R
Land Use Code
TWO FAMILY
Legal Description
102 PARADE ST 45 X 51
Square Feet
1408
Topo
LEVEL
Utility
ALL PUBLIC
Zoning
Please contact your municipal zoning officer
Deed Book
2017
Deed Page
012480
2026 Tax Values
Land Value / Taxable
6,200 / 6,200.00
Building Value / Taxable
41,800 / 41,800.00
Total Value / Taxable
48,000 / 48,000.00
Clean & Green
Inactive
Homestead Status
Inactive
Farmstead Status
Inactive
Lerta Amount
0.00
Lerta Expiration Year
2014
Residential Data
Card 1
Style
OLD STYLE
Basement
FULL
Year Built
1915
Exterior Wall
ALUMINUM/VINYL
Total Living Area
1408
Full Baths
2
Half Baths
0
Fuel Type
GAS
Heating
CENTRAL
Heating System
FORCED AIR
Stories
2.0
Total Bedrooms
4
Total Family Rooms
2
Total Rooms
8
Fireplaces
0
Other Buildings & Yards
No OBY Data Found
Sales History
Sale Date
Type
Price
Book / Page
Other Info
6/16/2017
LAND & BUILDING
679300
2017 / 012480
SPECIAL WARRANTY DEED
9/30/2003
LAND & BUILDING
0
1070 / 667
SPECIAL WARRANTY DEED
10/15/1998
0
0593 / 2396
10/17/1996
0
0466 / 1732
7/20/1990
0
0130 / 1547
4/28/1981
0
1418 / 0294
2/6/1979
0
1338 / 0258
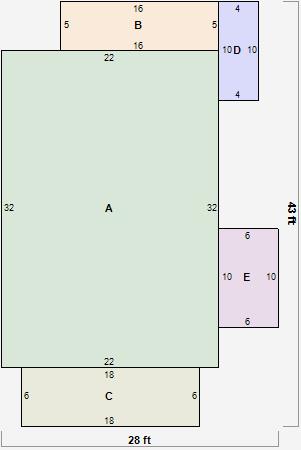
Parcel Sketches
Residential Card 1
A
MAIN
704 square feet
B
EFP ENCL FRAME PORCH
80 square feet
C
EFP ENCL FRAME PORCH
108 square feet
D
WDDCK WOOD DECKS
40 square feet
E
OFP OPEN FRAME PORCH WDDCK WOOD DECKS
60 square feet
Parcel Images
Please note:
this tab is for informational purposes only and may not show all delinquencies, see the Taxes tab for more accurate delinquent taxes due.