Elected Officials
Courts
Departments
Initiatives
Open Government
About
Login / Register
Home
/
Property & Tax Records
/
Property Records
/
Property & Tax Search
/
Parcel Profile
/
Print View
Search for Another Parcel
Parcel Profile
Historical Card
Sketches
Photos
Tax Map
Taxes
Print View
Print This Page
Address: 1435 E 7 ST
Parcel: 14011004010500
Parcel Profile
Address
1435 | E | 7 | ST
Street Status
PAVED | SIDEWALK
School District
CITY OF ERIE SCHOOL
Acreage
0.1102
Classification
R
Land Use Code
SINGLE FAMILY
Legal Description
1435 E 7 ST 40 X 120
Square Feet
1638
Topo
LEVEL
Utility
ALL PUBLIC
Zoning
Please contact your municipal zoning officer
Deed Book
2023
Deed Page
018000
2026 Tax Values
Land Value / Taxable
8,900 / 8,900.00
Building Value / Taxable
31,700 / 31,700.00
Total Value / Taxable
40,600 / 40,600.00
Clean & Green
Inactive
Homestead Status
Active
Farmstead Status
Inactive
Lerta Amount
0
Lerta Expiration Year
0
Residential Data
Card 1
Style
OLD STYLE
Basement
FULL
Year Built
1907
Exterior Wall
ALUMINUM/VINYL
Total Living Area
1638
Full Baths
1
Half Baths
1
Fuel Type
GAS
Heating
CENTRAL A/C
Heating System
FORCED AIR
Stories
1.5
Total Bedrooms
3
Total Family Rooms
0
Total Rooms
8
Fireplaces
0
Other Buildings & Yards
No OBY Data Found
Sales History
Sale Date
Type
Price
Book / Page
Other Info
10/20/2023
LAND & BUILDING
0
2023 / 018000
QUIT/CLAIM SURVIVORSHIP
9/28/1994
0
0355 / 1767
5/18/1984
20000
1536 / 0149
9/29/1978
3500
1323 / 0094
10/23/1967
0
0971 / 0185
4/20/1967
0
0959 / 0239
6/10/1939
0
0396 / 0187
3/3/1939
0
0386 / 0069
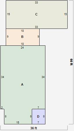
Parcel Sketches
Residential Card 1
A
MAIN
936 square feet
B
EFP ENCL FRAME PORCH
162 square feet
C
MA_PT CONC/MAS PATIO
495 square feet
D
OFP OPEN FRAME PORCH
56 square feet
Parcel Images