Elected Officials
Courts
Departments
Initiatives
Open Government
About
Login / Register
Home
/
Property & Tax Records
/
Property Records
/
Property & Tax Search
/
Parcel Profile
/
Print View
Search for Another Parcel
Parcel Profile
Historical Card
Sketches
Photos
Tax Map
Taxes
Print View
Print This Page
Address: 703 PAYNE AVE
Parcel: 14011004011400
Parcel Profile
Address
703 | PAYNE | AVE
Street Status
PAVED | SIDEWALK
School District
CITY OF ERIE SCHOOL
Acreage
0.0820
Classification
R
Land Use Code
SINGLE FAMILY
Legal Description
703 PAYNE AVE 42 X 85
Square Feet
1106
Topo
LEVEL
Utility
ALL PUBLIC
Zoning
Please contact your municipal zoning officer
Deed Book
2014
Deed Page
019895
2026 Tax Values
Land Value / Taxable
8,100 / 8,100.00
Building Value / Taxable
13,800 / 13,800.00
Total Value / Taxable
21,900 / 21,900.00
Clean & Green
Inactive
Homestead Status
Active
Farmstead Status
Inactive
Lerta Amount
0
Lerta Expiration Year
0
Residential Data
Card 1
Style
BUNGALOW
Basement
FULL
Year Built
1908
Exterior Wall
ALUMINUM/VINYL
Total Living Area
1106
Full Baths
1
Half Baths
0
Fuel Type
GAS
Heating
CENTRAL
Heating System
FORCED AIR
Stories
1.0
Total Bedrooms
2
Total Family Rooms
0
Total Rooms
7
Fireplaces
1
Other Buildings & Yards
No OBY Data Found
Sales History
Sale Date
Type
Price
Book / Page
Other Info
9/18/2014
LAND & BUILDING
18000
2014 / 019895
SPECIAL WARRANTY DEED
10/9/2013
LAND & BUILDING
14500
2013 / 026848
DEED
11/17/1961
0
848 / 322
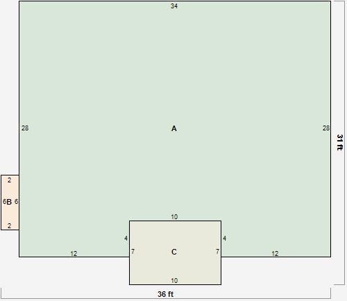
Parcel Sketches
Residential Card 1
A
MAIN
912 square feet
B
UNFIN BSMT BASEMENT UNFINISHED 1S FR ONE STORY FRAME
12 square feet
C
OFP OPEN FRAME PORCH
70 square feet
Parcel Images
Please note:
this tab is for informational purposes only and may not show all delinquencies, see the Taxes tab for more accurate delinquent taxes due.