Elected Officials
Courts
Departments
Initiatives
Open Government
About
Login / Register
Home
/
Property & Tax Records
/
Property Records
/
Property & Tax Search
/
Parcel Profile
/
Print View
Search for Another Parcel
Parcel Profile
Historical Card
Sketches
Photos
Tax Map
Taxes
Print View
Print This Page
Address: 1433 35 ATKINS ST
Parcel: 14011005010600
Parcel Profile
Address
1433 | 35 | ATKINS | ST
Street Status
PAVED | SIDEWALK
School District
CITY OF ERIE SCHOOL
Acreage
0.0852
Classification
R
Land Use Code
TWO FAMILY
Legal Description
1433 35 ATKINS ST 33.75 X 110
Square Feet
2112
Topo
LEVEL
Utility
ALL PUBLIC
Zoning
Please contact your municipal zoning officer
Deed Book
2021
Deed Page
011927
2026 Tax Values
Land Value / Taxable
8,200 / 8,200.00
Building Value / Taxable
30,560 / 30,560.00
Total Value / Taxable
38,760 / 38,760.00
Clean & Green
Inactive
Homestead Status
Active
Farmstead Status
Inactive
Lerta Amount
0
Lerta Expiration Year
0
Residential Data
Card 1
Style
OLD STYLE
Basement
FULL
Year Built
1915
Exterior Wall
FRAME
Total Living Area
2112
Full Baths
2
Half Baths
0
Fuel Type
GAS
Heating
CENTRAL
Heating System
FORCED AIR
Stories
2.0
Total Bedrooms
4
Total Family Rooms
0
Total Rooms
10
Fireplaces
0
Other Buildings & Yards
No OBY Data Found
Sales History
Sale Date
Type
Price
Book / Page
Other Info
5/12/2021
LAND & BUILDING
5000
2021 / 011927
QUIT CLAIM DEED
9/20/2018
LAND & BUILDING
1000
2018 / 019356
SPECIAL WARRANTY DEED
7/13/2018
LAND & BUILDING
2530
2018 / 013885
SHERIFF'S DED
6/17/1999
LAND & BUILDING
31000
643 / 1975
2/24/1999
0
0619 / 1688
4/3/1995
42921
0378 / 0282
5/25/1978
16500
1306 / 0126
4/7/1970
0
1020 / 0240
6/27/1963
0
0881 / 0196
3/13/1956
0
0723 / 0585
10/6/1947
0
0526 / 0431
10/1/1947
0
0497 / 0348
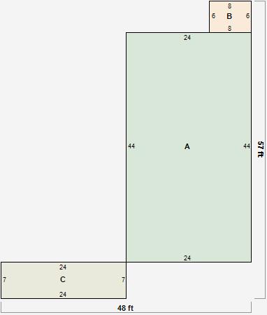
Parcel Sketches
Residential Card 1
A
MAIN
1056 square feet
B
EFP ENCL FRAME PORCH
48 square feet
C
WDDCK WOOD DECKS
168 square feet
Parcel Images
Please note:
this tab is for informational purposes only and may not show all delinquencies, see the Taxes tab for more accurate delinquent taxes due.