Address: 1446 ATKINS ST   Parcel: 14011005022700
Parcel Profile
Address1446 | ATKINS | ST
Street StatusPAVED | SIDEWALK
School DistrictCITY OF ERIE SCHOOL
Acreage0.1134
ClassificationC
Land Use CodeWAREHOUSES
Legal Description1446 ATKINS ST 42.57 X 116
Square Feet1396
TopoLEVEL
UtilityALL PUBLIC
ZoningPlease contact your municipal zoning officer
Deed Book0820
Deed Page0498
2025 Tax Values
Land Value / Taxable9,600 / 9,600.00
Building Value / Taxable4,600 / 4,600.00
Total Value / Taxable14,200 / 14,200.00
Clean & GreenInactive
Homestead StatusInactive
Farmstead StatusInactive
Lerta Amount0
Lerta Expiration Year0
Commercial Data
Card 1WAREHOUSE
 Business Living Area - 1396
 Year Built - 1920
 Improvement Name - ERIE RACING PIGEON CLUB
 Value - 11650
Other Buildings & Yards
No OBY Data Found
Sales History
Sale DateTypePriceBook / PageOther Info
6/8/1960 00820 / 0498 
6/8/1960 00896 / 0213 



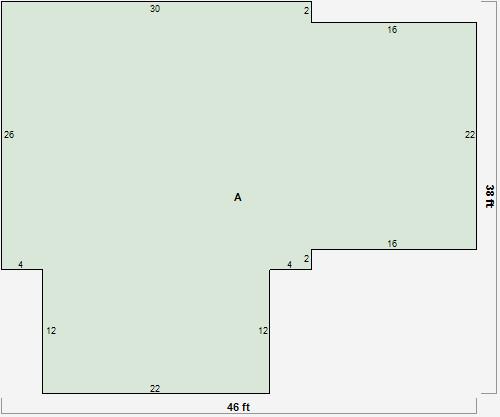
Parcel Sketches

Commercial Card 1

Commercial Card 1
AMAIN1396 square feet

Parcel Images

parcel photo