Elected Officials
Courts
Departments
Initiatives
Open Government
About
Login / Register
Home
/
Property & Tax Records
/
Property Records
/
Property & Tax Search
/
Parcel Profile
/
Print View
Search for Another Parcel
Parcel Profile
Historical Card
Sketches
Photos
Tax Map
Taxes
Print View
Print This Page
Address: 2003 E LAKE RD
Parcel: 14011016011900
Parcel Profile
Address
2003 | E | LAKE | RD
Street Status
PAVED | SIDEWALK
School District
CITY OF ERIE SCHOOL
Acreage
0.0781
Classification
R
Land Use Code
SINGLE FAMILY
Legal Description
2003 E LAKE RD 46 X 74
Square Feet
1392
Topo
LEVEL
Utility
ALL PUBLIC
Zoning
Please contact your municipal zoning officer
Deed Book
1245
Deed Page
0513
2026 Tax Values
Land Value / Taxable
11,900 / 11,900.00
Building Value / Taxable
55,130 / 55,130.00
Total Value / Taxable
67,030 / 67,030.00
Clean & Green
Inactive
Homestead Status
Active
Farmstead Status
Inactive
Lerta Amount
0
Lerta Expiration Year
0
Residential Data
Card 1
Style
OLD STYLE
Basement
FULL
Year Built
1924
Exterior Wall
FRAME
Total Living Area
1572
Full Baths
1
Half Baths
0
Fuel Type
GAS
Heating
CENTRAL
Heating System
FORCED AIR
Stories
2.0
Total Bedrooms
3
Total Family Rooms
0
Total Rooms
6
Fireplaces
1
Other Buildings & Yards
No OBY Data Found
Sales History
Sale Date
Type
Price
Book / Page
Other Info
6/24/2005
LAND & BUILDING
57900
1245 / 0513
WARRANTY/SURVIVORSHIP DEED
2/22/2005
LAND & BUILDING
27500
1212 / 1025
WARRANTY/SURVIVORSHIP DEED
3/22/2002
LAND & BUILDING
0
864 / 706
AFFIDAVIT
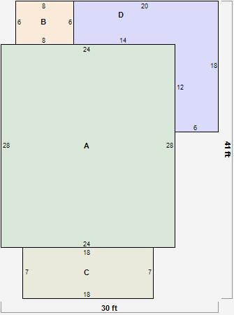
Parcel Sketches
Residential Card 1
A
MAIN
672 square feet
B
1S FR ONE STORY FRAME
48 square feet
C
EFP ENCL FRAME PORCH
126 square feet
D
WDDCK WOOD DECKS
192 square feet
Parcel Images
Please note:
this tab is for informational purposes only and may not show all delinquencies, see the Taxes tab for more accurate delinquent taxes due.