Elected Officials
Courts
Departments
Initiatives
Open Government
About
Login / Register
Home
/
Property & Tax Records
/
Property Records
/
Property & Tax Search
/
Parcel Profile
/
Print View
Search for Another Parcel
Parcel Profile
Historical Card
Sketches
Photos
Tax Map
Taxes
Print View
Print This Page
Address: 658 EUCLID AVE
Parcel: 14011016020100
Parcel Profile
Address
658 | EUCLID | AVE
Street Status
PAVED | ALLEY
School District
CITY OF ERIE SCHOOL
Acreage
0.0850
Classification
R
Land Use Code
SINGLE FAMILY
Legal Description
658 EUCLID AVE 33.65 X 110
Square Feet
973
Topo
LEVEL
Utility
ALL PUBLIC
Zoning
Please contact your municipal zoning officer
Deed Book
2015
Deed Page
001747
2026 Tax Values
Land Value / Taxable
12,200 / 12,200.00
Building Value / Taxable
12,800 / 12,800.00
Total Value / Taxable
25,000 / 25,000.00
Clean & Green
Inactive
Homestead Status
Inactive
Farmstead Status
Inactive
Lerta Amount
0
Lerta Expiration Year
0
Residential Data
Card 1
Style
TWIN
Basement
FULL
Year Built
1918
Exterior Wall
BRICK
Total Living Area
973
Full Baths
1
Half Baths
0
Fuel Type
GAS
Heating
CENTRAL A/C
Heating System
FORCED AIR
Stories
1.5
Total Bedrooms
2
Total Family Rooms
0
Total Rooms
5
Fireplaces
0
Other Buildings & Yards
No OBY Data Found
Sales History
Sale Date
Type
Price
Book / Page
Other Info
1/29/2015
LAND & BUILDING
8000
2015 / 001747
FIDUCIARY DEED
6/10/1999
0
0642 / 0760
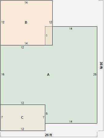
Parcel Sketches
Residential Card 1
A
MAIN
556 square feet
B
EFP ENCL FRAME PORCH
168 square feet
C
EMP ENCL MASONRY PORCH
84 square feet
Parcel Images
Please note:
this tab is for informational purposes only and may not show all delinquencies, see the Taxes tab for more accurate delinquent taxes due.