Elected Officials
Courts
Departments
Initiatives
Open Government
About
Login / Register
Home
/
Property & Tax Records
/
Property Records
/
Property & Tax Search
/
Parcel Profile
/
Print View
Search for Another Parcel
Parcel Profile
Historical Card
Sketches
Photos
Tax Map
Taxes
Print View
Print This Page
Address: 654 EUCLID AVE
Parcel: 14011016020200
Parcel Profile
Address
654 | EUCLID | AVE
Street Status
PAVED | SIDEWALK
School District
CITY OF ERIE SCHOOL
Acreage
0.0913
Classification
R
Land Use Code
SINGLE FAMILY
Legal Description
654 EUCLID AVE 36.17 X 110
Square Feet
1057
Topo
LEVEL
Utility
ALL PUBLIC
Zoning
Please contact your municipal zoning officer
Deed Book
2024
Deed Page
001252
2026 Tax Values
Land Value / Taxable
6,400 / 6,400.00
Building Value / Taxable
16,840 / 16,840.00
Total Value / Taxable
23,240 / 23,240.00
Clean & Green
Inactive
Homestead Status
Inactive
Farmstead Status
Inactive
Lerta Amount
0
Lerta Expiration Year
0
Residential Data
Card 1
Style
TWIN
Basement
FULL
Year Built
1918
Exterior Wall
BRICK
Total Living Area
1057
Full Baths
1
Half Baths
0
Fuel Type
GAS
Heating
CENTRAL
Heating System
FORCED AIR
Stories
1.5
Total Bedrooms
2
Total Family Rooms
0
Total Rooms
5
Fireplaces
0
Other Buildings & Yards
No OBY Data Found
Sales History
Sale Date
Type
Price
Book / Page
Other Info
1/25/2024
LAND & BUILDING
40000
2024 / 001252
SPECIAL WARRANTY DEED
6/7/2007
LAND & BUILDING
23000
1421 / 1857
WARRANTY/SURVIVORSHIP DEED
8/18/2006
LAND & BUILDING
0
1355 / 1587
WARRANTY/SURVIVORSHIP DEED
6/23/1998
0
0569 / 0870
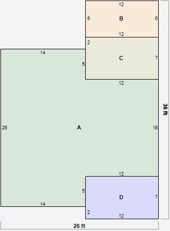
Parcel Sketches
Residential Card 1
A
MAIN
556 square feet
B
OFP OPEN FRAME PORCH
72 square feet
C
1S FR ONE STORY FRAME
84 square feet
D
EFP ENCL FRAME PORCH
84 square feet
Parcel Images
Please note:
this tab is for informational purposes only and may not show all delinquencies, see the Taxes tab for more accurate delinquent taxes due.