Elected Officials
Courts
Departments
Initiatives
Open Government
About
Login / Register
Home
/
Property & Tax Records
/
Property Records
/
Property & Tax Search
/
Parcel Profile
/
Print View
Search for Another Parcel
Parcel Profile
Historical Card
Sketches
Photos
Tax Map
Taxes
Print View
Print This Page
Address: 636 EUCLID AVE
Parcel: 14011016020700
Parcel Profile
Address
636 | EUCLID | AVE
Street Status
PAVED | SIDEWALK
School District
CITY OF ERIE SCHOOL
Acreage
0.1730
Classification
R
Land Use Code
TWO FAMILY
Legal Description
636 EUCLID AVE 68.50 X 110
Square Feet
2162
Topo
LEVEL
Utility
ALL PUBLIC
Zoning
Please contact your municipal zoning officer
Deed Book
1398
Deed Page
1136
2026 Tax Values
Land Value / Taxable
14,000 / 14,000.00
Building Value / Taxable
77,600 / 77,600.00
Total Value / Taxable
91,600 / 91,600.00
Clean & Green
Inactive
Homestead Status
Active
Farmstead Status
Inactive
Lerta Amount
0
Lerta Expiration Year
0
Residential Data
Card 1
Style
TWIN
Basement
FULL
Year Built
1918
Exterior Wall
BRICK
Total Living Area
1081
Full Baths
1
Half Baths
0
Fuel Type
GAS
Heating
CENTRAL
Heating System
FORCED AIR
Stories
2.0
Total Bedrooms
3
Total Family Rooms
0
Total Rooms
6
Fireplaces
0
Card 2
Style
TWIN
Basement
FULL
Year Built
1918
Exterior Wall
BRICK
Total Living Area
1081
Full Baths
1
Half Baths
0
Fuel Type
GAS
Heating
CENTRAL
Heating System
FORCED AIR
Stories
2.0
Total Bedrooms
3
Total Family Rooms
0
Total Rooms
6
Fireplaces
0
Other Buildings & Yards
Description
Built
Width
Length
Area
FRAME OR CB DETACHED GARAGE
1935
22
22
484
Sales History
Sale Date
Type
Price
Book / Page
Other Info
3/2/2007
LAND & BUILDING
85000
1398 / 1136
WARRANTY/SURVIVORSHIP DEED
5/15/2003
LAND & BUILDING
75000
1011 / 1894
WARRANTY/SURVIVORSHIP DEED
7/29/1997
0
0511 / 0263
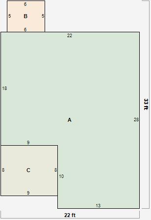
Parcel Sketches
Residential Card 1
A
MAIN
526 square feet
B
EFP ENCL FRAME PORCH
30 square feet
C
OMP OPEN MASONRY PORCH AT FN ATTIC-FINISHED
72 square feet
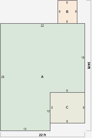
Residential Card 2
A
MAIN
526 square feet
B
EFP ENCL FRAME PORCH
30 square feet
C
OMP OPEN MASONRY PORCH AT FN ATTIC-FINISHED
72 square feet
Parcel Images
Please note:
this tab is for informational purposes only and may not show all delinquencies, see the Taxes tab for more accurate delinquent taxes due.