Elected Officials
Courts
Departments
Initiatives
Open Government
About
Login / Register
Home
/
Property & Tax Records
/
Property Records
/
Property & Tax Search
/
Parcel Profile
/
Print View
Search for Another Parcel
Parcel Profile
Historical Card
Sketches
Photos
Tax Map
Taxes
Print View
Print This Page
Address: 622 EUCLID AVE
Parcel: 14011016021000
Parcel Profile
Address
622 | EUCLID | AVE
Street Status
PAVED | SIDEWALK
School District
CITY OF ERIE SCHOOL
Acreage
0.1115
Classification
R
Land Use Code
SINGLE FAMILY
Legal Description
622 EUCLID AVE 44.17 X 110
Square Feet
1232
Topo
LEVEL
Utility
ALL PUBLIC
Zoning
Please contact your municipal zoning officer
Deed Book
2025
Deed Page
016506
2026 Tax Values
Land Value / Taxable
13,200 / 13,200.00
Building Value / Taxable
44,410 / 44,410.00
Total Value / Taxable
57,610 / 57,610.00
Clean & Green
Inactive
Homestead Status
Inactive
Farmstead Status
Inactive
Lerta Amount
0
Lerta Expiration Year
0
Residential Data
Card 1
Style
OLD STYLE
Basement
FULL
Year Built
1918
Exterior Wall
BRICK
Total Living Area
1232
Full Baths
1
Half Baths
0
Fuel Type
GAS
Heating
CENTRAL
Heating System
FORCED AIR
Stories
2.0
Total Bedrooms
3
Total Family Rooms
0
Total Rooms
6
Fireplaces
0
Other Buildings & Yards
Description
Built
Width
Length
Area
FRAME OR CB DETACHED GARAGE
1981
16
20
320
Sales History
Sale Date
Type
Price
Book / Page
Other Info
9/22/2025
LAND & BUILDING
83000
2025 / 016506
SPECIAL WARRANTY DEED
9/12/2000
LAND & BUILDING
48900
0726 / 0243
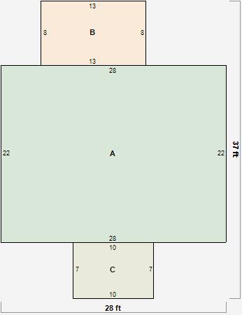
Parcel Sketches
Residential Card 1
A
MAIN
616 square feet
B
EFP ENCL FRAME PORCH
104 square feet
C
OFP OPEN FRAME PORCH
70 square feet
Parcel Images