Elected Officials
Courts
Departments
Initiatives
Open Government
About
Login / Register
Home
/
Property & Tax Records
/
Property Records
/
Property & Tax Search
/
Parcel Profile
/
Print View
Search for Another Parcel
Parcel Profile
Historical Card
Sketches
Photos
Tax Map
Taxes
Print View
Print This Page
Address: 616 EUCLID AVE
Parcel: 14011016021200
Parcel Profile
Address
616 | EUCLID | AVE
Street Status
PAVED | ALLEY
School District
CITY OF ERIE SCHOOL
Acreage
0.0916
Classification
R
Land Use Code
SINGLE FAMILY
Legal Description
616 EUCLID AVE 36.75X110
Square Feet
1082
Topo
LEVEL
Utility
ALL PUBLIC
Zoning
Please contact your municipal zoning officer
Deed Book
1097
Deed Page
1179
2026 Tax Values
Land Value / Taxable
12,400 / 12,400.00
Building Value / Taxable
37,000 / 37,000.00
Total Value / Taxable
49,400 / 49,400.00
Clean & Green
Inactive
Homestead Status
Active
Farmstead Status
Inactive
Lerta Amount
0
Lerta Expiration Year
0
Residential Data
Card 1
Style
TWIN
Basement
FULL
Year Built
1918
Exterior Wall
BRICK
Total Living Area
1082
Full Baths
1
Half Baths
0
Fuel Type
GAS
Heating
CENTRAL
Heating System
FORCED AIR
Stories
2.0
Total Bedrooms
3
Total Family Rooms
0
Total Rooms
6
Fireplaces
0
Other Buildings & Yards
No OBY Data Found
Sales History
Sale Date
Type
Price
Book / Page
Other Info
12/29/2003
LAND & BUILDING
20000
1097 / 1179
WARRANTY/SURVIVORSHIP DEED
11/29/1972
0
1084 / 0251
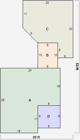
Parcel Sketches
Residential Card 1
A
MAIN
525 square feet
B
EFP ENCL FRAME PORCH
80 square feet
C
WDDCK WOOD DECKS
358 square feet
D
EMP ENCL MASONRY PORCH AT FN ATTIC-FINISHED
81 square feet
Parcel Images