Elected Officials
Courts
Departments
Initiatives
Open Government
About
Login / Register
Home
/
Property & Tax Records
/
Property Records
/
Property & Tax Search
/
Parcel Profile
/
Print View
Search for Another Parcel
Parcel Profile
Historical Card
Sketches
Photos
Tax Map
Taxes
Print View
Print This Page
Address: 615 MARNE RD
Parcel: 14011016021900
Parcel Profile
Address
615 | MARNE | RD
Street Status
PAVED | ALLEY
School District
CITY OF ERIE SCHOOL
Acreage
0.0874
Classification
R
Land Use Code
SINGLE FAMILY
Legal Description
615 MARNE RD IRR X 110
Square Feet
973
Topo
LEVEL
Utility
ALL PUBLIC
Zoning
Please contact your municipal zoning officer
Deed Book
2021
Deed Page
034184
2026 Tax Values
Land Value / Taxable
12,300 / 12,300.00
Building Value / Taxable
12,700 / 12,700.00
Total Value / Taxable
25,000 / 25,000.00
Clean & Green
Inactive
Homestead Status
Inactive
Farmstead Status
Inactive
Lerta Amount
0
Lerta Expiration Year
0
Residential Data
Card 1
Style
TWIN
Basement
FULL
Year Built
1918
Exterior Wall
BRICK
Total Living Area
973
Full Baths
1
Half Baths
0
Fuel Type
GAS
Heating
CENTRAL
Heating System
FORCED AIR
Stories
1.5
Total Bedrooms
2
Total Family Rooms
0
Total Rooms
5
Fireplaces
0
Other Buildings & Yards
Description
Built
Width
Length
Area
FRAME OR CB DETACHED GARAGE
1918
12
23
276
Sales History
Sale Date
Type
Price
Book / Page
Other Info
12/29/2021
LAND & BUILDING
0
2021 / 034184
QUIT CLAIM DEED
7/30/2018
LAND & BUILDING
8500
2018 / 015216
SPECIAL WARRANTY DEED
7/22/2016
LAND & BUILDING
23000
2016 / 015439
SPECIAL WARRANTY DEED
8/26/2013
LAND & BUILDING
23500
2013 / 022609
WARRANTY/SURVIVORSHIP DEED
1/26/2009
LAND & BUILDING
14301
1540 / 2065
DEED
10/30/2008
LAND & BUILDING
0
1528 / 2072
DEED
5/8/2008
LAND & BUILDING
0
1493 / 1352
SHERIFF'S DED
6/24/2004
LAND & BUILDING
36000
1148 / 1338
SPECIAL WARRANTY DEED
4/27/1993
0
0265 / 1079
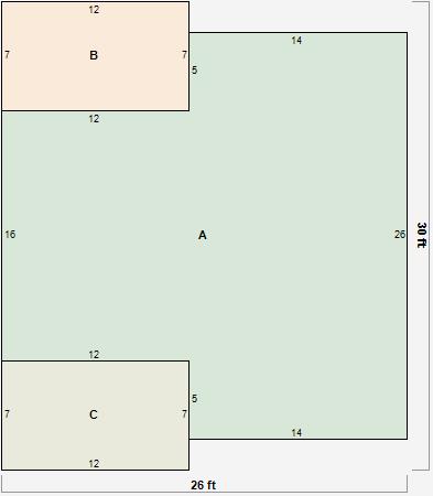
Parcel Sketches
Residential Card 1
A
MAIN
556 square feet
B
EFP ENCL FRAME PORCH
84 square feet
C
OFP OPEN FRAME PORCH
84 square feet
Parcel Images
Please note:
this tab is for informational purposes only and may not show all delinquencies, see the Taxes tab for more accurate delinquent taxes due.