Elected Officials
Courts
Departments
Initiatives
Open Government
About
Login / Register
Home
/
Property & Tax Records
/
Property Records
/
Property & Tax Search
/
Parcel Profile
/
Print View
Search for Another Parcel
Parcel Profile
Historical Card
Sketches
Photos
Tax Map
Taxes
Print View
Print This Page
Address: 657 MARNE RD
Parcel: 14011016023000
Parcel Profile
Address
657 | MARNE | RD
Street Status
PAVED | ALLEY
School District
CITY OF ERIE SCHOOL
Acreage
0.0876
Classification
R
Land Use Code
SINGLE FAMILY
Legal Description
657 MARNE RD 34.7 X 110
Square Feet
1082
Topo
LEVEL
Utility
ALL PUBLIC
Zoning
Please contact your municipal zoning officer
Deed Book
0597
Deed Page
0331
2026 Tax Values
Land Value / Taxable
12,300 / 12,300.00
Building Value / Taxable
25,200 / 25,200.00
Total Value / Taxable
37,500 / 37,500.00
Clean & Green
Inactive
Homestead Status
Inactive
Farmstead Status
Inactive
Lerta Amount
0
Lerta Expiration Year
0
Residential Data
Card 1
Style
TWIN
Basement
FULL
Year Built
1918
Exterior Wall
BRICK
Total Living Area
1082
Full Baths
1
Half Baths
0
Fuel Type
GAS
Heating
CENTRAL
Heating System
FORCED AIR
Stories
2.0
Total Bedrooms
3
Total Family Rooms
0
Total Rooms
6
Fireplaces
0
Other Buildings & Yards
No OBY Data Found
Sales History
Sale Date
Type
Price
Book / Page
Other Info
10/30/1998
0
0597 / 0331
10/1/1998
LAND & BUILDING
31250
/
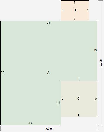
Parcel Sketches
Residential Card 1
A
MAIN
525 square feet
B
EFP ENCL FRAME PORCH
35 square feet
C
EMP ENCL MASONRY PORCH AT FN ATTIC-FINISHED
81 square feet
Parcel Images
Please note:
this tab is for informational purposes only and may not show all delinquencies, see the Taxes tab for more accurate delinquent taxes due.