Elected Officials
Courts
Departments
Initiatives
Open Government
About
Login / Register
Home
/
Property & Tax Records
/
Property Records
/
Property & Tax Search
/
Parcel Profile
/
Print View
Search for Another Parcel
Parcel Profile
Historical Card
Sketches
Photos
Tax Map
Taxes
Print View
Print This Page
Address: 630 MARNE RD
Parcel: 14011016030900
Parcel Profile
Address
630 | MARNE | RD
Street Status
PAVED | SIDEWALK
School District
CITY OF ERIE SCHOOL
Acreage
0.1919
Classification
R
Land Use Code
SINGLE FAMILY
Legal Description
630 MARNE RD 76.27 X 110
Square Feet
1112
Topo
LEVEL
Utility
ALL PUBLIC
Zoning
Please contact your municipal zoning officer
Deed Book
0468
Deed Page
1501
2026 Tax Values
Land Value / Taxable
14,200 / 14,200.00
Building Value / Taxable
45,800 / 45,800.00
Total Value / Taxable
60,000 / 60,000.00
Clean & Green
Inactive
Homestead Status
Active
Farmstead Status
Inactive
Lerta Amount
0
Lerta Expiration Year
0
Residential Data
Card 1
Style
OLD STYLE
Basement
FULL
Year Built
1918
Exterior Wall
BRICK
Total Living Area
1112
Full Baths
1
Half Baths
1
Fuel Type
GAS
Heating
CENTRAL
Heating System
FORCED AIR
Stories
2.0
Total Bedrooms
2
Total Family Rooms
0
Total Rooms
5
Fireplaces
0
Other Buildings & Yards
Description
Built
Width
Length
Area
FRAME OR CB DETACHED GARAGE
1920
14
20
280
Sales History
Sale Date
Type
Price
Book / Page
Other Info
10/29/1996
0
0468 / 1501
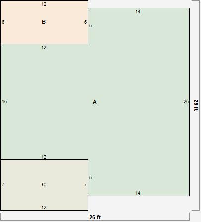
Parcel Sketches
Residential Card 1
A
MAIN
556 square feet
B
EFP ENCL FRAME PORCH
72 square feet
C
OFP OPEN FRAME PORCH
84 square feet
Parcel Images
Please note:
this tab is for informational purposes only and may not show all delinquencies, see the Taxes tab for more accurate delinquent taxes due.