Elected Officials
Courts
Departments
Initiatives
Open Government
About
Login / Register
Home
/
Property & Tax Records
/
Property Records
/
Property & Tax Search
/
Parcel Profile
/
Print View
Search for Another Parcel
Parcel Profile
Historical Card
Sketches
Photos
Tax Map
Taxes
Print View
Print This Page
Address: 614 MARNE RD
Parcel: 14011016031300
Parcel Profile
Address
614 | MARNE | RD
Street Status
PAVED | SIDEWALK
School District
CITY OF ERIE SCHOOL
Acreage
0.0916
Classification
R
Land Use Code
SINGLE FAMILY
Legal Description
614 MARNE RD 36.25 X 110
Square Feet
1130
Topo
LEVEL
Utility
ALL PUBLIC
Zoning
Please contact your municipal zoning officer
Deed Book
2021
Deed Page
034185
2026 Tax Values
Land Value / Taxable
12,400 / 12,400.00
Building Value / Taxable
30,600 / 30,600.00
Total Value / Taxable
43,000 / 43,000.00
Clean & Green
Inactive
Homestead Status
Inactive
Farmstead Status
Inactive
Lerta Amount
0
Lerta Expiration Year
0
Residential Data
Card 1
Style
TWIN
Basement
FULL
Year Built
1918
Exterior Wall
BRICK
Total Living Area
1130
Full Baths
1
Half Baths
0
Fuel Type
GAS
Heating
CENTRAL
Heating System
FORCED AIR
Stories
2.0
Total Bedrooms
3
Total Family Rooms
0
Total Rooms
6
Fireplaces
0
Other Buildings & Yards
Description
Built
Width
Length
Area
FRAME OR CB DETACHED GARAGE
1920
30
18
540
Sales History
Sale Date
Type
Price
Book / Page
Other Info
12/29/2021
LAND & BUILDING
0
2021 / 034185
QUIT CLAIM DEED
7/29/2004
LAND & BUILDING
59000
1159 / 0213
DEED
4/28/2004
LAND & BUILDING
0
1129 / 0511
SHERIFF'S DED
10/15/1990
0
0140 / 1055
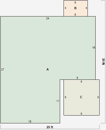
Parcel Sketches
Residential Card 1
A
MAIN
549 square feet
B
EFP ENCL FRAME PORCH
24 square feet
C
EMP ENCL MASONRY PORCH AT FN ATTIC-FINISHED
81 square feet
Parcel Images
Please note:
this tab is for informational purposes only and may not show all delinquencies, see the Taxes tab for more accurate delinquent taxes due.