Elected Officials
Courts
Departments
Initiatives
Open Government
About
Login / Register
Home
/
Property & Tax Records
/
Property Records
/
Property & Tax Search
/
Parcel Profile
/
Print View
Search for Another Parcel
Parcel Profile
Historical Card
Sketches
Photos
Tax Map
Taxes
Print View
Print This Page
Address: 501 PARK WAY
Parcel: 14011017021900
Parcel Profile
Address
501 | PARK | WAY
Street Status
PAVED | SIDEWALK
School District
CITY OF ERIE SCHOOL
Acreage
0.1056
Classification
R
Land Use Code
SINGLE FAMILY
Legal Description
501 PARK WAY 40 X 115
Square Feet
1258
Topo
LEVEL
Utility
ALL PUBLIC
Zoning
Please contact your municipal zoning officer
Deed Book
2021
Deed Page
027251
2026 Tax Values
Land Value / Taxable
13,000 / 13,000.00
Building Value / Taxable
45,550 / 45,550.00
Total Value / Taxable
58,550 / 58,550.00
Clean & Green
Inactive
Homestead Status
Inactive
Farmstead Status
Inactive
Lerta Amount
0
Lerta Expiration Year
0
Residential Data
Card 1
Style
OLD STYLE
Basement
FULL
Year Built
1926
Exterior Wall
COMPOSITION
Total Living Area
1258
Full Baths
1
Half Baths
0
Fuel Type
GAS
Heating
CENTRAL
Heating System
FORCED AIR
Stories
2.0
Total Bedrooms
3
Total Family Rooms
0
Total Rooms
6
Fireplaces
0
Other Buildings & Yards
Description
Built
Width
Length
Area
FRAME OR CB DETACHED GARAGE
1926
12
18
216
Sales History
Sale Date
Type
Price
Book / Page
Other Info
10/11/2021
LAND & BUILDING
0
2021 / 027251
QUIT CLAIM DEED
1/23/2009
LAND & BUILDING
80000
1540 / 1333
DEED
12/18/1997
0
0534 / 1530
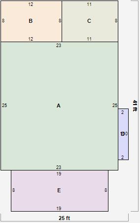
Parcel Sketches
Residential Card 1
A
MAIN
575 square feet
B
OFP OPEN FRAME PORCH
96 square feet
C
1S FR ONE STORY FRAME
88 square feet
D
FRBAY FRAME BAY
20 square feet
E
EFP ENCL FRAME PORCH
152 square feet
Parcel Images
Please note:
this tab is for informational purposes only and may not show all delinquencies, see the Taxes tab for more accurate delinquent taxes due.