Elected Officials
Courts
Departments
Initiatives
Open Government
About
Login / Register
Home
/
Property & Tax Records
/
Property Records
/
Property & Tax Search
/
Parcel Profile
/
Print View
Search for Another Parcel
Parcel Profile
Historical Card
Sketches
Photos
Tax Map
Taxes
Print View
Print This Page
Address: 312 SANFORD PL
Parcel: 14011018010400
Parcel Profile
Address
312 | SANFORD | PL
Street Status
PAVED | SIDEWALK
School District
CITY OF ERIE SCHOOL
Acreage
0.1210
Classification
R
Land Use Code
SINGLE FAMILY
Legal Description
312 SANFORD PLACE 40X131.75
Square Feet
934
Topo
LEVEL
Utility
ALL PUBLIC
Zoning
Please contact your municipal zoning officer
Deed Book
2015
Deed Page
005159
2026 Tax Values
Land Value / Taxable
13,300 / 13,300.00
Building Value / Taxable
36,700 / 36,700.00
Total Value / Taxable
50,000 / 50,000.00
Clean & Green
Inactive
Homestead Status
Inactive
Farmstead Status
Inactive
Lerta Amount
0
Lerta Expiration Year
0
Residential Data
Card 1
Style
OLD STYLE
Basement
FULL
Year Built
1937
Exterior Wall
ALUMINUM/VINYL
Total Living Area
934
Full Baths
1
Half Baths
0
Fuel Type
GAS
Heating
CENTRAL
Heating System
FORCED AIR
Stories
1.5
Total Bedrooms
2
Total Family Rooms
0
Total Rooms
5
Fireplaces
0
Other Buildings & Yards
Description
Built
Width
Length
Area
FRAME OR CB DETACHED GARAGE
1937
12
21
252
Sales History
Sale Date
Type
Price
Book / Page
Other Info
3/20/2015
LAND & BUILDING
50000
2015 / 005159
FIDUCIARY DEED
1/1/1965
0
926 / 175
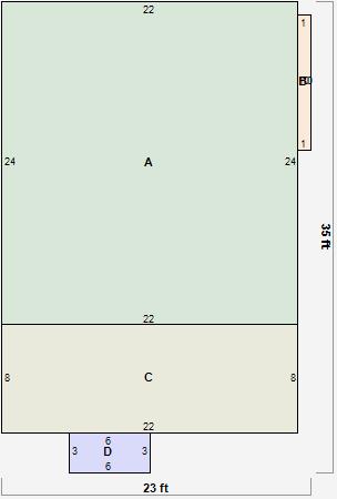
Parcel Sketches
Residential Card 1
A
MAIN
528 square feet
B
FRBAY FRAME BAY
10 square feet
C
OFP OPEN FRAME PORCH
176 square feet
D
MA STOOP/TERR MAS STOOP
18 square feet
Parcel Images
Please note:
this tab is for informational purposes only and may not show all delinquencies, see the Taxes tab for more accurate delinquent taxes due.