Elected Officials
Courts
Departments
Initiatives
Open Government
About
Login / Register
Home
/
Property & Tax Records
/
Property Records
/
Property & Tax Search
/
Parcel Profile
/
Print View
Search for Another Parcel
Parcel Profile
Historical Card
Sketches
Photos
Tax Map
Taxes
Print View
Print This Page
Address: 2004 E LAKE RD
Parcel: 14011022011800
Parcel Profile
Address
2004 | E | LAKE | RD
Street Status
PAVED | SIDEWALK
School District
CITY OF ERIE SCHOOL
Acreage
0.1736
Classification
R
Land Use Code
SINGLE FAMILY
Legal Description
2004 E LAKE RD 63 X 120
Square Feet
1810
Topo
LEVEL
Utility
ALL PUBLIC
Zoning
Please contact your municipal zoning officer
Deed Book
1391
Deed Page
1675
2026 Tax Values
Land Value / Taxable
14,000 / 14,000.00
Building Value / Taxable
59,000 / 59,000.00
Total Value / Taxable
73,000 / 73,000.00
Clean & Green
Inactive
Homestead Status
Inactive
Farmstead Status
Inactive
Lerta Amount
0
Lerta Expiration Year
0
Residential Data
Card 1
Style
OLD STYLE
Basement
FULL
Year Built
1918
Exterior Wall
BRICK
Total Living Area
1810
Full Baths
1
Half Baths
0
Fuel Type
GAS
Heating
CENTRAL
Heating System
FORCED AIR
Stories
1.0
Total Bedrooms
2
Total Family Rooms
0
Total Rooms
7
Fireplaces
1
Other Buildings & Yards
No OBY Data Found
Sales History
Sale Date
Type
Price
Book / Page
Other Info
1/26/2007
LAND & BUILDING
0
1391 / 1675
QUIT CLAIM DEED
10/3/1951
0
0608 / 0284
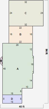
Parcel Sketches
Residential Card 1
A
MAIN
1300 square feet
B
1S FR ONE STORY FRAME
352 square feet
C
FR GR FRAME GARAGE
768 square feet
D
1SMAS MASONRY
144 square feet
E
MABAY MASONRY BAY
14 square feet
Parcel Images